ПРИМЕР РАБОТЫ С ПЛАНИРОВКОЙ (1000р/метр)
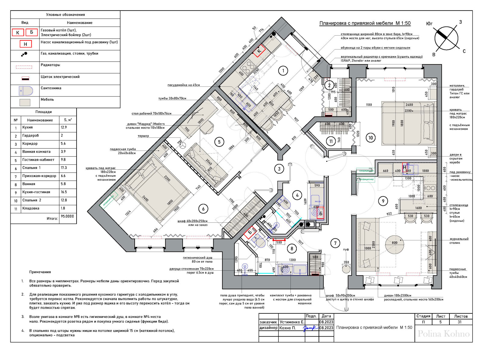
Пример недорогого проекта, в который входит: . - обмер и построение плана . - план демонтажа . - план монтажа перегородок . - план привязки мебели . - эскизные 3д визуализации . . Всё в реальных размерах, но без подробной детальной проработки. Такой проект можно дать прорабу - зная расположение мебели, ему будет несложно расставить розетки, выводы под кондиционеры, заложить ниши под мебель. . . Нередко заказчики сначала берут эскизный проект с планировкой. Получив результат, они видят как я работаю, могут понять комфортно им или нет. Далее они могут заключить договор на полноценный дизайн-проект, так что планировка считается первым этапом работ.
Год реализации: 2023
Стоимость проектирования: 34 999 ₽
г. Москва
31 фотография































