МОСКВА НАГОРНАЯ 53 м
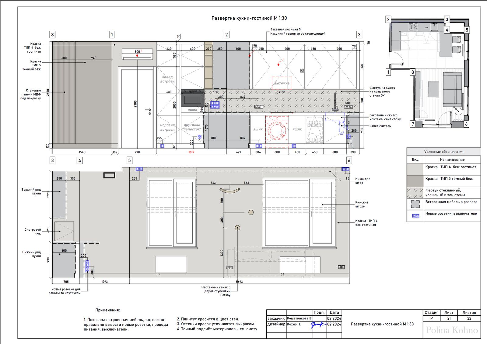
Заказчики - молодая семейная пара с кошкой. Проект выполнен для квартиры с отделкой от застройщика, с сохранением существующей планировки и минимальными вмешательствами в отделку. . . В процессе общения, выяснились цели и предпочитаемая стилистика, бюджет. Главные особенности проекта: . . - много интересных фактур: . Зеркала, 3д панели под покраску, мебель с рифлеными фасадами, панели с шпоном дуба на лоджии и в прихожей . - нежные и сложные оттенки . - нестандартная планировка кухни без стола, но с островом . - 90% мебели на заказ по чертежам дизайнера. . - полное ведение проекта (авторский надзор + комплектация), заказ материалов со всеми возможными скидками для клиента . - многие светильники заказаны на Алиэкспресс, всё работает :) . . . Начало работы: декабрь 2023 . Проект готов: февраль 2024 . Конец работ: октябрь 2024 (мы долго ждали мебель и фартук, можно было быстрее)
45 фотографий













































