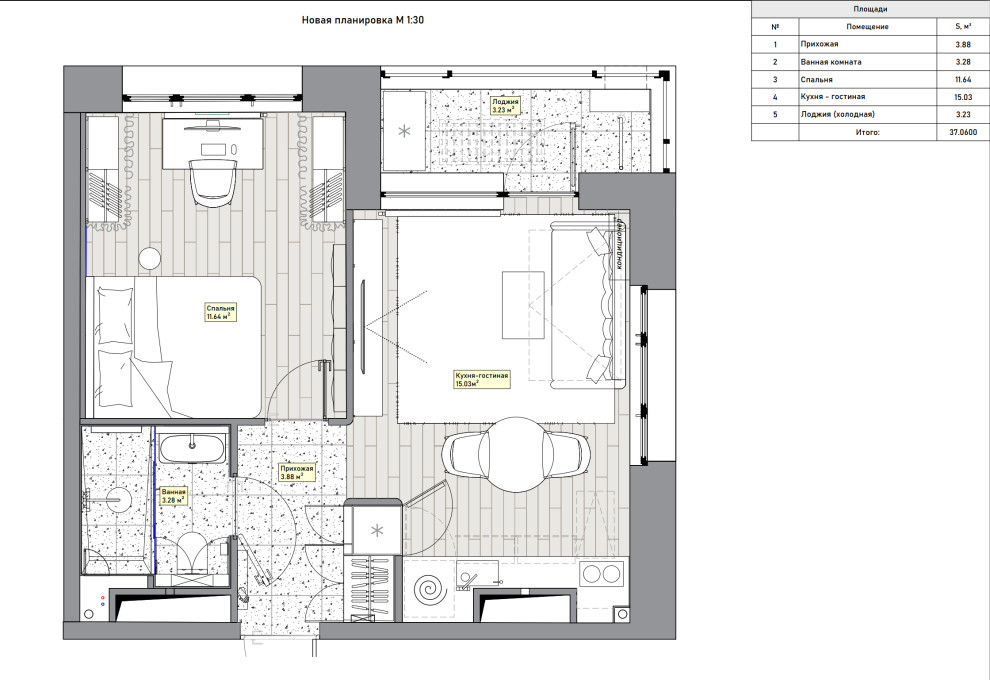
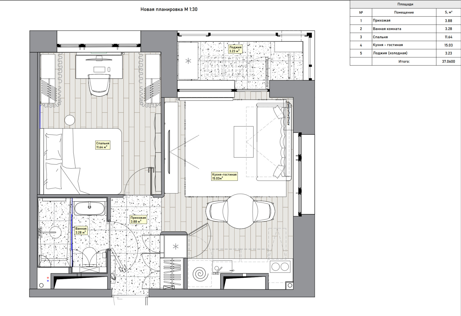
МОСКВА АКВИЛОН БИСАЙД - 37 М
Заказчица обратилась в конце 2024 года, работу начали в январе 2025. . Это активная деловая женщина, руководитель. Учитывались только её пожелания, благодаря этому интерьер получился уникальным. . . Пожелания были следующие: . - не переносить стены (можно частично проемы) . - современный стиль, лаконичный-строгий . - спокойные оттенки . - сочетание зеленого цвета и натурального дерева (дуб) . - воздушность, свежесть, прохлада . - функциональность, качество важнее красоты . - много закрытого хранения, но нужно 1-2 полочки для декора . - задействовать холодную лоджию, не утепляя её . . Фишки проекта: . 1. Кухня имеет всё необходимое и даже чуточку больше, хотя места от застройщика крайне мало. Задействована площадь прихожей, все ниши и выступы. . . 2. Процесс постирки, сушки, глажки вещей продуман. . Стирка в обычной машинке под столешницей кухни, сушка - на балконе в потолочной сушилке. Глажка вещей отпаривателем, вешалка крепится на крючок в спальне. . . 3. Оформление окон. Вместо привычных портьер до пола - жалюзи, рулонные шторы. Откосы отделаны натуральным деревом. В гостиной вообще отсутствуют шторы! . . 4. Кабинет, Гардеробная, Кинозал, Спальня - всё в одной комнате.
32 фотографии

































