logo
Войти
Профиль пользователя

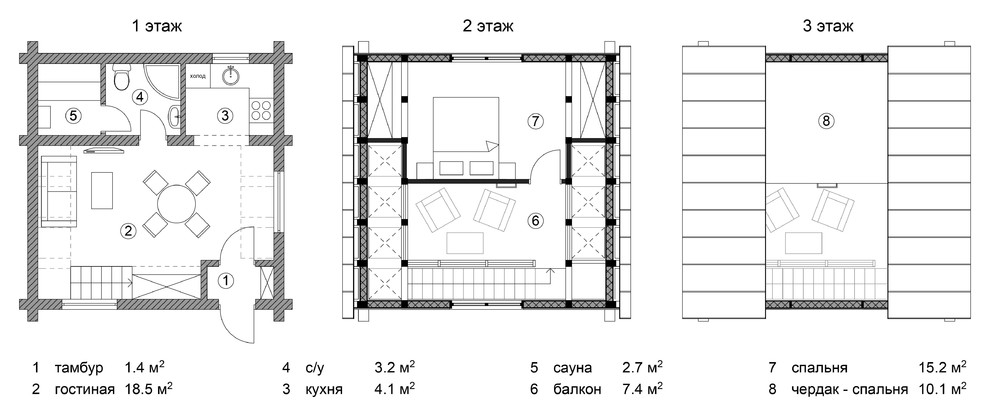
Пятистенок

Год реализации: 2013
Стоимость проектирования: 525 000 ₽
photo

3 фотографии

Пятистенок
Пятистенок
Пятистенок
Пятистенок
Пятистенок
Пятистенок
Фоновое изображение профиля Арсен Орехов
Фото профиля Арсен Орехов

Арсен ОреховАрсен Орехов

5

3 отзыва

Архитекторы

Контакты

г. Москва, Малая Грузинская

Все проекты

Дом на рельефе

La puissance

Жилой дом в Пирогово.

Singularity

Дом у моря

Дом на полуострове

Воздушная классика

Смотреть все
Флатика
О насМы в прессеFAQКонтактыМатериалыКарта сайта

«Флатика» в соцсетях:

ПинтерестМаксВкДзенTelegramTelegram Pro
Pro
Instagram

Продукт компании Meta, признанной экстремистской организацией, деятельность которой запрещена в РФ

Пользовательское соглашениеПолитика в отношении обработки персональных данных

© 2026 Flatica

ФотоЭкспертыСтатьи