logo

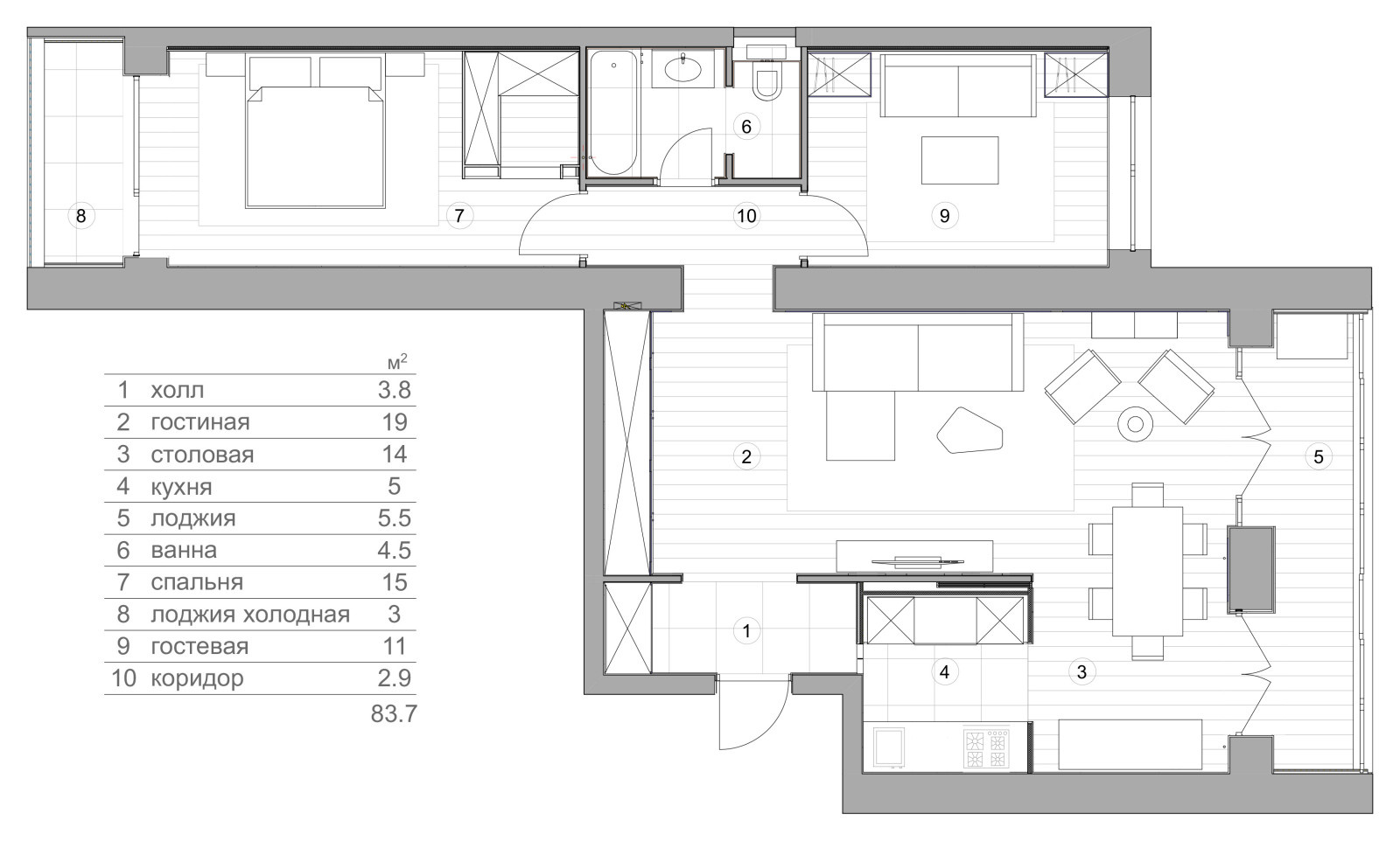
Интерьер квартиры 86 м2. Совместно с дизайнером Алексей Булыгин.

Год реализации: 2023
Стоимость проектирования: 525 000
г. Москва
photo

4 фотографии

Singularity
Singularity
Singularity
Singularity
Singularity
Singularity
Singularity
Singularity
Фоновое изображение профиля Арсен Орехов
Фото профиля Арсен Орехов