logo

Дом на рельефе

Год реализации: 2023
photo

8 фотографий

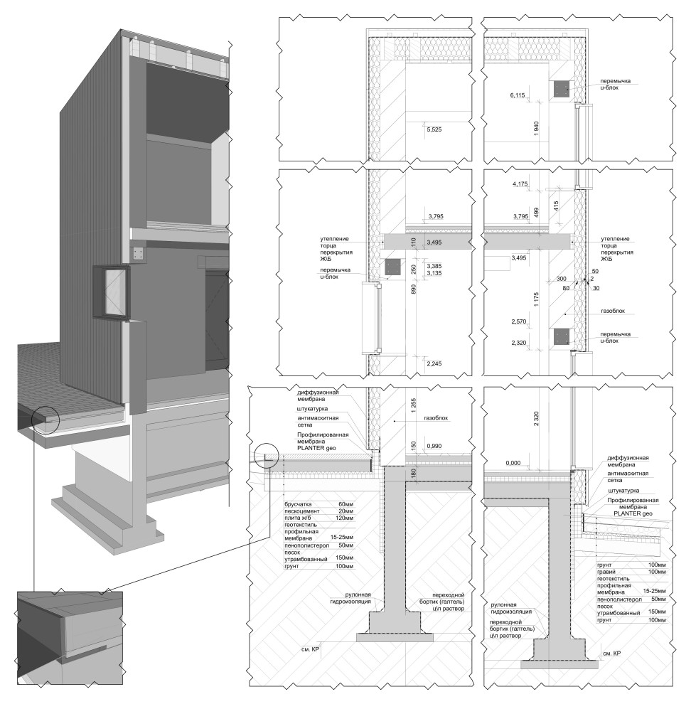
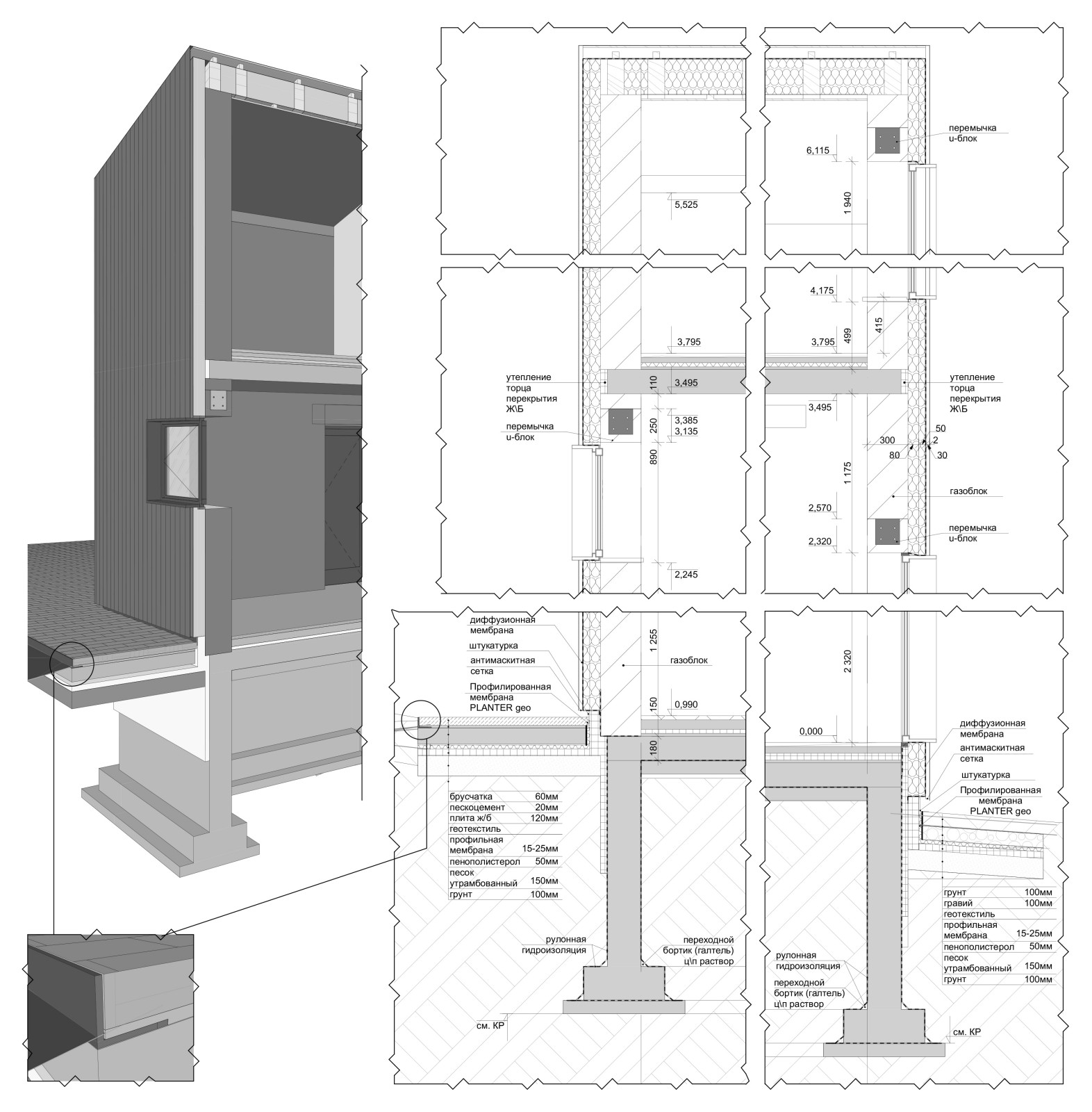
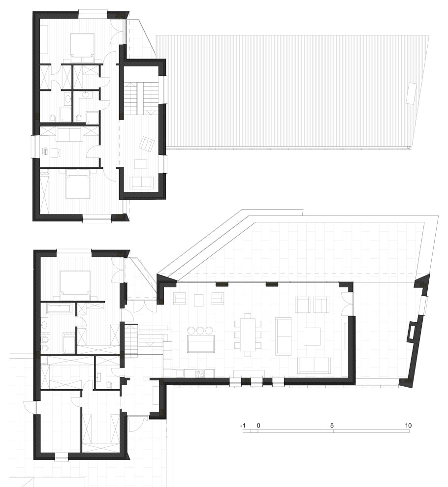
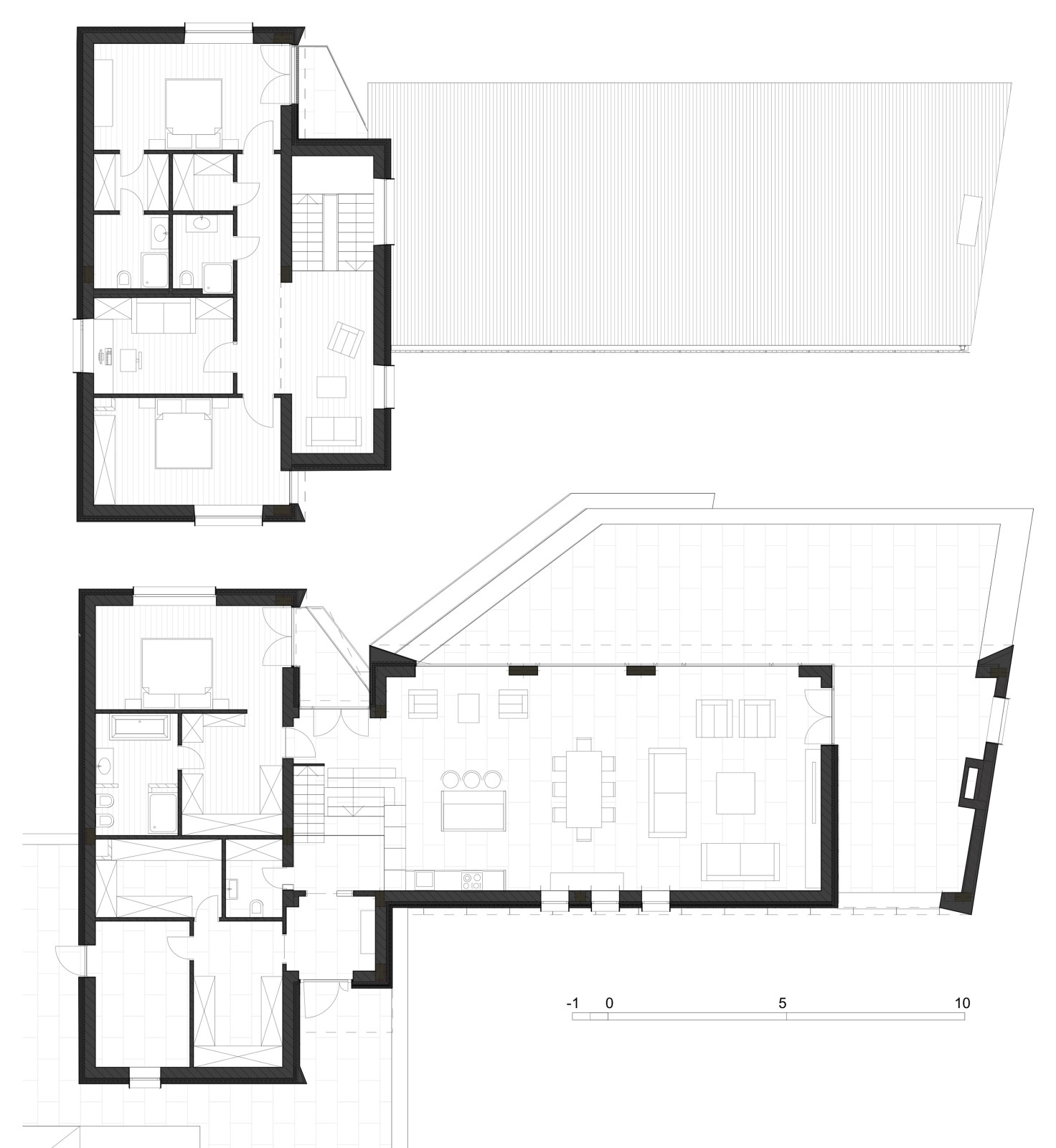
Дом на рельефе
Дом на рельефе
Дом на рельефе
Дом на рельефе
Дом на рельефе
Дом на рельефе
Дом на рельефе
Дом на рельефе
Дом на рельефе
Дом на рельефе
Дом на рельефе
Дом на рельефе
Дом на рельефе
Дом на рельефе
Дом на рельефе
Дом на рельефе
Фоновое изображение профиля Арсен Орехов
Фото профиля Арсен Орехов