Модульный дом "Бриз"
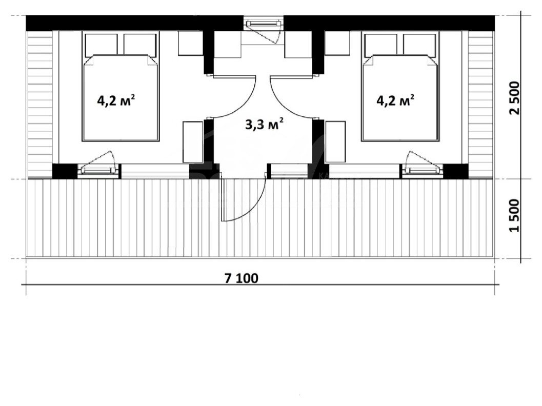
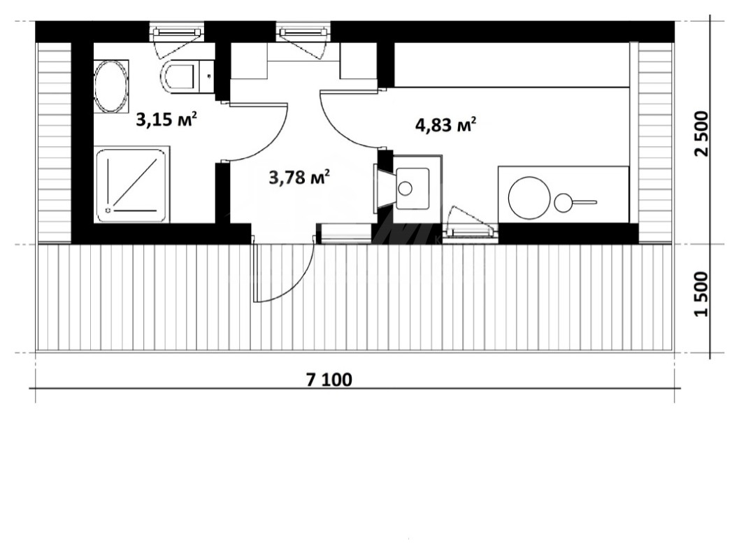
Модульный дом «Бриз» . Стоимость от 860 000 р . . Размеры модульного деревянного комплекса . Общая площадь пом.: 11.8м2 . Площадь дома: 28.4м2 . Внешние габариты дома (ДхШхВ): 7.1м х 4.0м х 3.65м . Высота потолков внутри дома: 2.10м-2.65м . . Что включено в стоимость дома . . Фундамент: . свайно-винтовой фундамент с монтажом, размеры сваи 108 мм, нулевая отметка 600 мм. . . Каркас: . доска сухая (влажность 10-18%), ГОСТ. . утепление минеральной ватой по всему периметру дома от 150 до 200мм, супердиффузионные пароизоляционные мембраны. . сауна (материал Липа), электрическая печь, используется дополнительное экранированное утепление. . терраса 1.5м х 7.1м. . деревянная лестница для входа в дом L=2.0м, h=60см. . . Отделка: . внешняя отделка: стены - дерево (полиакрилатная краска TIKKURILA ULTRA CLASSIC), композитные материалы, крыша - наплавляемая кровля или профилированный лист. . внутренняя отделка: торцевые стены массив дерева (ламинат), имитация бруса (полиакрилатная краска TIKKURILA ULTRA CLASSIC). . межкомнатные двери МДФ. . ванная комната: мозаика и массив дерева (полиакрилатная краска TIKKURILA ULTRA CLASSIC). . . Остекление: . оконные деревянные рамы Sikkens Cetol двухкамерные стеклопакеты с i-напылением с европейской фурнитурой (поворотно-откидные 3 положения). . входные двери деревянные рамы Sikkens Cetol, двухкамерные стеклопакеты с европейской фурнитурой. . боковой фасад и панорамное остекление двухкамерные стеклопакеты (рама - полиакрилатная краска TIKKURILA ULTRA CLASSIC). . . Коммуникации: . разводка водопровода и канализации внутри каркаса дома. . центральный электрощит и электрика встроены в каркас дома. . внутреннее и наружное освещение светильники, лампочки, розетки, выключатели. . греющий кабель 3.5м. . . Оборудование и сантехника: . тёплые полы в ванной комнате (дополнительно при желании заказчика можно сделать во всем доме или зонально). . ванная комната: умывальник+шкафчик, ванна или душевая кабина, европейские сантехнические приборы. . бойлер на 60 литров. . водосточная система. . . Что НЕ включено в стоимость дома: . доставка модулей от производства до участка. . кран для разгрузки и установки модулей. . мебель, конвекторы и бытовая техника. . система рекуперации воздуха. . . ВАЖНО: Монтаж дома осуществляется к УЖЕ подведенным коммуникациям (водоснабжение, канализация, электричество). Организацией коммуникаций на участке вы занимаетесь самостоятельно. Вы также можете обратиться к нам в компанию, и мы порекомендуем партнеров, которые помогут вам справиться с этой задачей. . . ОБРАТИТЕ ВНИМАНИЕ: Стоимость дома зависит от его комплектации. Ознакомиться с вариантами комплектации дома можно в нашем прайсе.
7 фотографий







