Модульный дом "Статный"
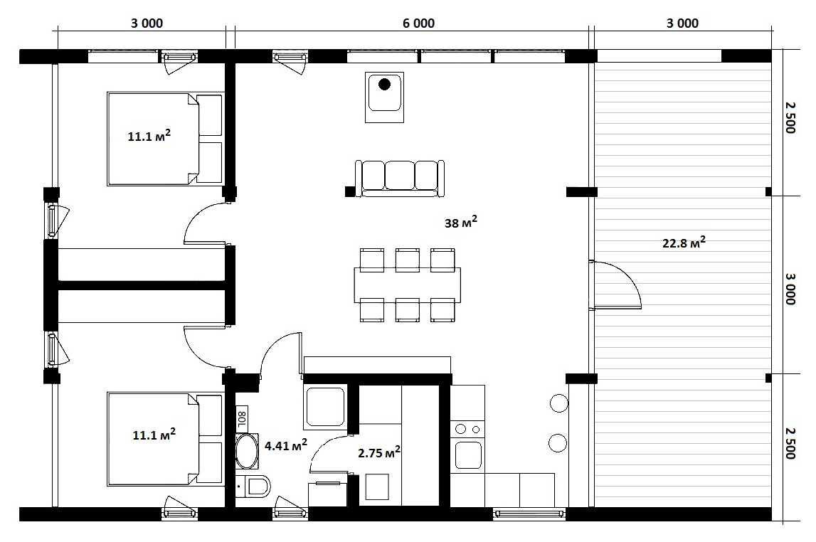
Размеры модульного деревянного дома . . Общая площадь пом.: 66.3м2 . Площадь дома: 89.1м2 . Внешние габариты дома (ДхШхВ): 12.0м х 8.0м х 4.13м . Высота потолков внутри дома: 1.85м-3.05м . . Что включено в стоимость дома: . . Фундамент: . свайно-винтовой фундамент с монтажом, размеры сваи 108 мм, нулевая отметка 600 мм. . . Каркас: . доска сухая (влажность 10-18%), ГОСТ. . утепление минеральной ватой по всему периметру дома от 150мм до 200мм, супердиффузионные пароизоляционные мембраны. . веранда 3м х 8м деревянное ограждение с двух сторон. . деревянная лестница для входа в дом L=2.5м, h=60см. . . Отделка: . внешняя отделка: фальцевая кровля или профилированный лист, торцевые стены дерево (полиакрилатная краска TIKKURILA ULTRA CLASSIC). . внутренняя отделка: торцевые стены массив дерева (ламинат), имитация бруса (полиакрилатная краска TIKKURILA ULTRA CLASSIC). . межкомнатные двери МДФ. . ванная комната: мозаика и массив дерева (полиакрилатная краска TIKKURILA ULTRA CLASSIC). . . Остекление: . оконные деревянные рамы Sikkens Cetol двухкамерные стеклопакеты с i-напылением с европейской фурнитурой (поворотно-откидные 3 положения). . входные двери деревянные рамы Sikkens Cetol, двухкамерные стеклопакеты с европейской фурнитурой. . боковой фасад и панорамное остекление двухкамерные стеклопакеты (рама-полиакрилатная краска TIKKURILA ULTRA CLASSIC). . . Коммуникации: . разводка водопровода и канализации внутри каркаса дома. . центральный электрощит и электрика встроены в каркас дома. . внутреннее и наружное освещение светильники, лампочки, розетки, выключатели. . греющий кабель 3.5м. . . Оборудование и сантехника: . вентиляционные клапана в каждой комнате. . тёплые полы в ванной комнате (дополнительно при желании заказчика можно сделать во всем доме или зонально). . ванная комната: умывальник+шкафчик, ванна или душевая кабина, европейские сантехнические приборы. . бойлер на 80 литров. . печь с комплектом дымохода и установкой. . снегозадержатели с двух сторон дома, водосточная система. . . Что НЕ включено в стоимость дома: . доставка модулей от производства до участка. . кран для разгрузки и установки модулей. . мебель, конвекторы и бытовая техника. . система рекуперации воздуха. . . ВАЖНО: Монтаж дома осуществляется к УЖЕ подведенным коммуникациям (водоснабжение, канализация, электричество). Организацией коммуникаций на участке вы занимаетесь самостоятельно. Вы также можете обратиться к нам в компанию, и мы порекомендуем партнеров, которые помогут вам справиться с этой задачей. . . ОБРАТИТЕ ВНИМАНИЕ! Стоимость дома зависит от его комплектации. Ознакомиться с вариантами комплектации дома можно в нашем прайсе.
15 фотографий















