logo
Модульный дом "Бриз"
Лес Рум

5

Модульный дом "Бриз"

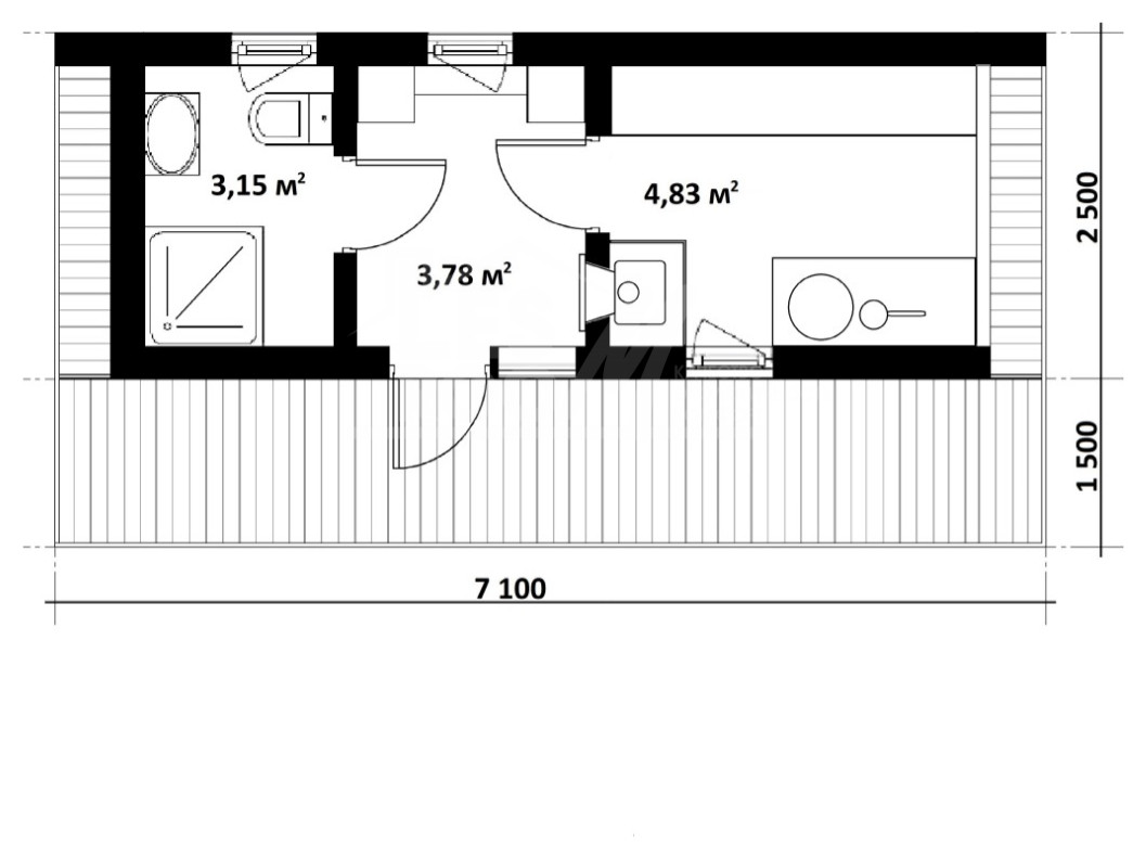
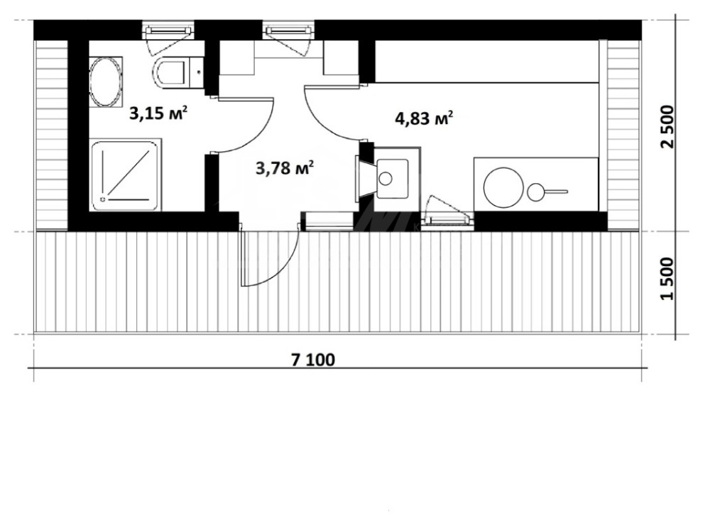
Модульный дом «Бриз» . Стоимость от 860 000 р . . Размеры модульного деревянного комплекса . Общая площадь пом.: 11.8м2 . Площадь дома: 28.4м2 . Внешние габариты дома (ДхШхВ): 7.1м х 4.0м х 3.65м . Высота потолков внутри дома: 2.10м-2.65м . . Что включено в стоимость дома . . Фундамент: . свайно-винтовой фундамент с монтажом, размеры сваи 108 мм, нулевая отметка 600 мм. . . Каркас: . доска сухая (влажность 10-18%), ГОСТ. . утепление минеральной ватой по всему периметру дома от 150 до 200мм, супердиффузионные пароизоляционные мембраны. . сауна (материал Липа), электрическая печь, используется дополнительное экранированное утепление. . терраса 1.5м х 7.1м. . деревянная лестница для входа в дом L=2.0м, h=60см. . . Отделка: . внешняя отделка: стены - дерево (полиакрилатная краска TIKKURILA ULTRA CLASSIC), композитные материалы, крыша - наплавляемая кровля или профилированный лист. . внутренняя отделка: торцевые стены массив дерева (ламинат), имитация бруса (полиакрилатная краска TIKKURILA ULTRA CLASSIC). . межкомнатные двери МДФ. . ванная комната: мозаика и массив дерева (полиакрилатная краска TIKKURILA ULTRA CLASSIC). . . Остекление: . оконные деревянные рамы Sikkens Cetol двухкамерные стеклопакеты с i-напылением с европейской фурнитурой (поворотно-откидные 3 положения). . входные двери деревянные рамы Sikkens Cetol, двухкамерные стеклопакеты с европейской фурнитурой. . боковой фасад и панорамное остекление двухкамерные стеклопакеты (рама - полиакрилатная краска TIKKURILA ULTRA CLASSIC). . . Коммуникации: . разводка водопровода и канализации внутри каркаса дома. . центральный электрощит и электрика встроены в каркас дома. . внутреннее и наружное освещение светильники, лампочки, розетки, выключатели. . греющий кабель 3.5м. . . Оборудование и сантехника: . тёплые полы в ванной комнате (дополнительно при желании заказчика можно сделать во всем доме или зонально). . ванная комната: умывальник+шкафчик, ванна или душевая кабина, европейские сантехнические приборы. . бойлер на 60 литров. . водосточная система. . . Что НЕ включено в стоимость дома: . доставка модулей от производства до участка. . кран для разгрузки и установки модулей. . мебель, конвекторы и бытовая техника. . система рекуперации воздуха. . . ВАЖНО: Монтаж дома осуществляется к УЖЕ подведенным коммуникациям (водоснабжение, канализация, электричество). Организацией коммуникаций на участке вы занимаетесь самостоятельно. Вы также можете обратиться к нам в компанию, и мы порекомендуем партнеров, которые помогут вам справиться с этой задачей. . . ОБРАТИТЕ ВНИМАНИЕ: Стоимость дома зависит от его комплектации. Ознакомиться с вариантами комплектации дома можно в нашем прайсе.

Другие фотографии в проекте

Вопросы к фото 0

Задайте вопрос

Вам ответят эксперты. Пришлем уведомление, когда вам ответят

Гостиная, Москва

Похожие фотографии

Apartments Neva Towers 1

Apartments Neva Towers 1

Пример оригинального дизайна: гостиная комната среднего размера в современном стиле с бежевыми стенами, светлым паркетным полом, бежевым полом, многоуровневым потолком, панелями на части стены и акцентной стеной

Apartments Neva Towers 1

Вадим Мартынов Екатерина Гатилова

Частная резиденция DRR

Частная резиденция DRR

Свежая идея для дизайна: идея дизайна в современном стиле - отличное фото интерьера

Частная резиденция DRR

Portner Architects

Вавилова 4

Вавилова 4

Стильный дизайн: гостиная комната в стиле неоклассика (современная классика) - последний тренд

Вавилова 4

Ира Носова

FESTIVAL FLAT

FESTIVAL FLAT

Пример оригинального дизайна: открытая, объединенная гостиная комната среднего размера, в белых тонах с отделкой деревом в современном стиле с белыми стенами, паркетным полом среднего тона, мультимедийным центром и коричневым полом

FESTIVAL FLAT

Екатерина

Гостиная

Гостиная

Пример оригинального дизайна: гостиная комната в современном стиле с коричневым диваном, паркетным полом среднего тона и потолком из вагонки без камина

Гостиная

Александра Протасова

Квартира ул Тверская

Квартира ул Тверская

На фото: гостиная комната в стиле неоклассика (современная классика) с белыми стенами и многоуровневым потолком с

Квартира ул Тверская

Олег Михайлов архитектор-дизайнер

Пентхаус в Краснодаре

Пентхаус в Краснодаре

На фото: идея дизайна в современном стиле с

Пентхаус в Краснодаре

Денис Мурый

Квартира в Палевском жилмассиве

Квартира в Палевском жилмассиве

Идея дизайна: открытая, объединенная гостиная комната среднего размера в скандинавском стиле с белыми стенами, полом из винила, коричневым полом и кирпичными стенами без телевизора

Квартира в Палевском жилмассиве

Дмитрий Дубровский

Зал

Зал

Источник вдохновения для домашнего уюта: гостиная комната в современном стиле с бежевыми стенами, светлым паркетным полом и бежевым полом

Зал

Дмитрий Галаганов

Квартира в ЖК "Василеостровский квартал"

Квартира в ЖК "Василеостровский квартал"

Пример оригинального дизайна: гостиная комната в современном стиле с паркетным полом среднего тона и коричневым полом

Квартира в ЖК "Василеостровский квартал"

Екатерина Савенко

Дом, умный дом(фотографии спальни)

Дом, умный дом(фотографии спальни)

Источник вдохновения для домашнего уюта: идея дизайна в современном стиле

Дом, умный дом(фотографии спальни)

Архитектурная студия Астар проект

Гостиная

Гостиная

Свежая идея для дизайна: маленькая открытая, объединенная гостиная комната в современном стиле с серыми стенами и серым полом без телевизора для на участке и в саду - отличное фото интерьера

Гостиная

Ольга Васильева