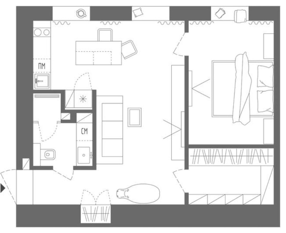
Профиль пользователяМинималистичная квартираГод реализации: 2018Стоимость проектирования: 2 450 000 ₽г. Санкт-Петербург15 фотографийПоделитьсяСохранитьПлан перепланировкиПоделитьсяСохранитьГардеробнаяПоделитьсяСохранитьГардеробнаяПоделитьсяСохранитьГардеробнаяПоделитьсяСохранитьВаннаяПоделитьсяСохранитьВаннаяПоделитьсяСохранитьВаннаяПоделитьсяСохранитьВаннаяПоделитьсяСохранитьСпальняПоделитьсяСохранитьСпальняПоделитьсяСохранитьСпальняПоделитьсяСохранитьЗона гостинойПоделитьсяСохранитьЗона входаПоделитьсяСохранитьЗона гостинойПоделитьсяСохранитьЗона кухниПоделитьсяСохранить