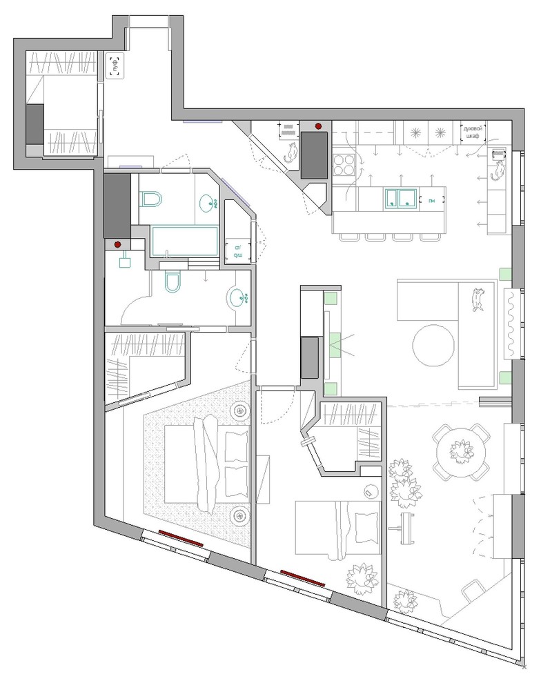
Профиль пользователяАмериканская классика в МосквеГод реализации: 2019Стоимость проектирования: 5 250 000 ₽г. Москва, Центральный административный округ27 фотографийПоделиться проектомГостевая уборнаяСохранитьПоделитьсяГостевая уборнаяСохранитьПоделитьсяГостевая уборнаяСохранитьПоделитьсяГостевая уборнаяСохранитьПоделитьсяГостевая уборнаяСохранитьПоделитьсяПлан перепланировкиСохранитьПоделитьсяПлан до перепланировкиСохранитьПоделитьсяГардеробнаяСохранитьПоделитьсяГардеробнаяСохранитьПоделитьсяГардеробная (вид на входное пространство)СохранитьПоделитьсяГардеробнаяСохранитьПоделитьсяЗона столовойСохранитьПоделитьсяСтоловая зона (вид из кухни)СохранитьПоделитьсяЗона кухниСохранитьПоделитьсяПроход к личным пространствамСохранитьПоделитьсяЗона кухни (вид из столовой)СохранитьПоделитьсяУ кухонной зоныСохранитьПоделитьсяСвязь применого пространства и гостинойСохранитьПоделитьсяВходное пространствоСохранитьПоделитьсяЗона кабинетаСохранитьПоделитьсяВид с диванаСохранитьПоделитьсяЗона кухниСохранитьПоделитьсяВид от входа на гостиную зонуСохранитьПоделитьсяГостиная зонаСохранитьПоделитьсяСтоловая-кабинетСохранитьПоделитьсяПриемное пространствоСохранитьПоделитьсяАмериканская классика в МосквеСохранитьПоделиться