Легкий модерн
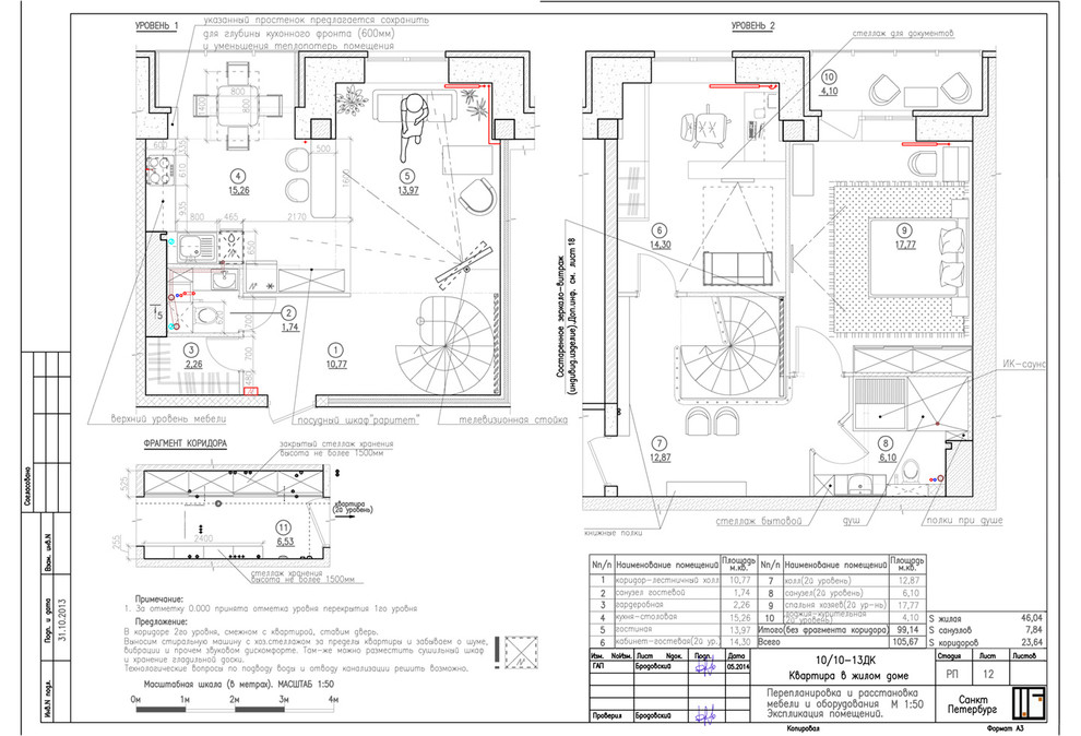
Ж/К "Гранд Фамилия" . Дизайн двухуровневой квартиры. . Стиль: "легкий" Модерн . Общая площадь: ~97м.кв. . г.Санкт-Петербург, пр. Космонавтов, д.65, корпус 10 . -- . С размышлениями о проектных решениях по данному объекту можно познакомиться в блоге на авторском сайте. . http://by-increation.ru/blog/ljogkij_modern/2015-04-15-9
Год реализации: 2014
Стоимость проектирования: 135 000 ₽
10 фотографий










