Заводной апельсин
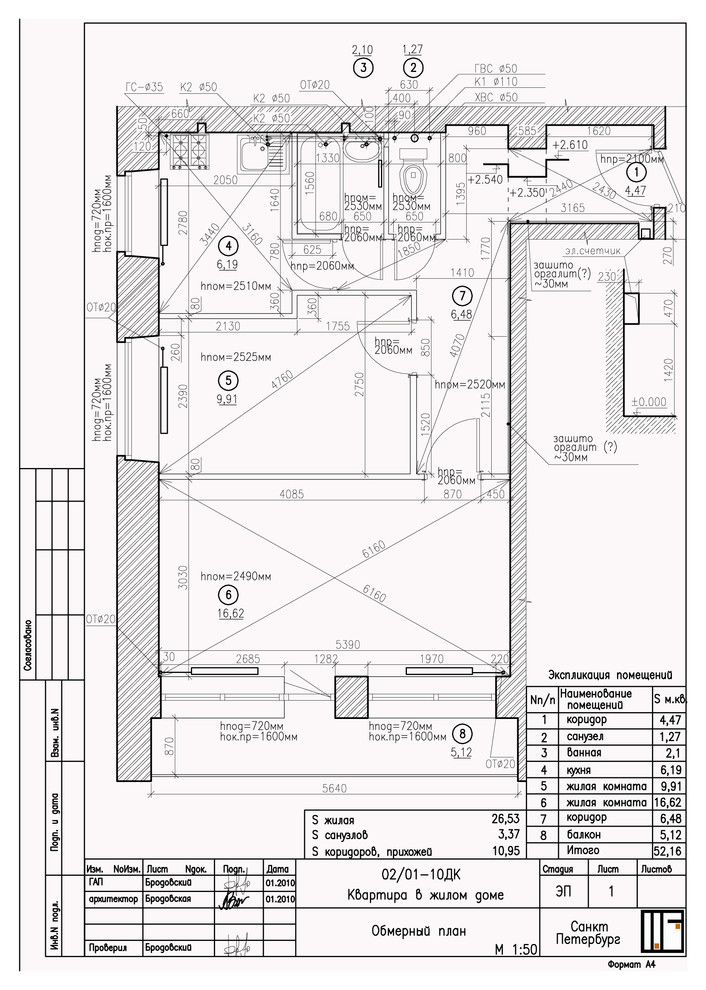
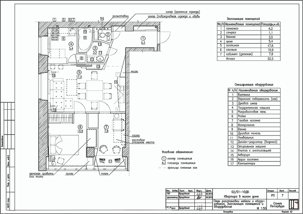
Ланское шоссе, д.71 . Дизайн двухкомнатной квартиры. . Стиль: Скандинавский . Общая площадь 52.2м.кв. . г. Санкт-Петербург, Ланское шоссе, д.71 . -- . Проект превращения заурядной малогабаритной двухкомнатной квартиры с не самой удачной планировкой в "сочный заводной апельсин". .
Год реализации: 2011
Стоимость проектирования: 135 000 ₽
25 фотографий


























