
Проектирование и строительство
5
·
10 отзывов
Легкий модерн
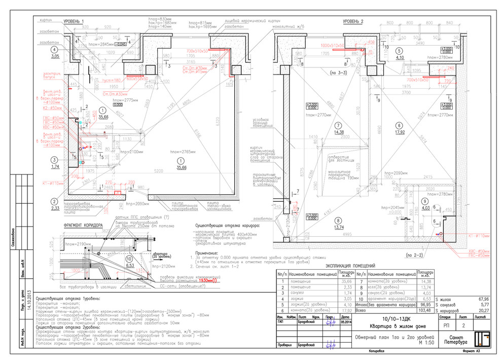
Обмерный план квартиры до перепланировки: Бродовский Юрий
Другие фотографии в проекте
Вопросы к фото 0
Задайте вопрос
Вам ответят эксперты. Пришлем уведомление, когда вам ответят

Проектирование и строительство
5
·
10 отзывов
Обмерный план квартиры до перепланировки: Бродовский Юрий
Другие фотографии в проекте
Вам ответят эксперты. Пришлем уведомление, когда вам ответят