Квартира в парижском стиле 50м2 в Москве
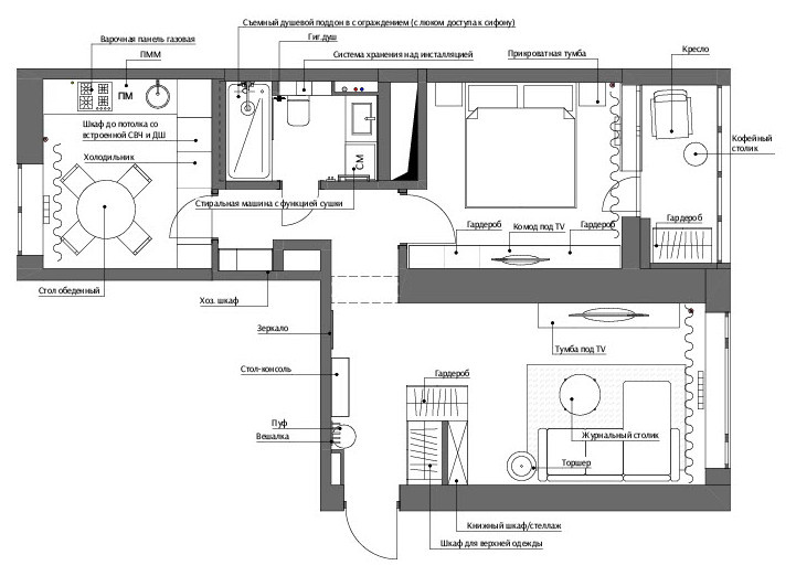
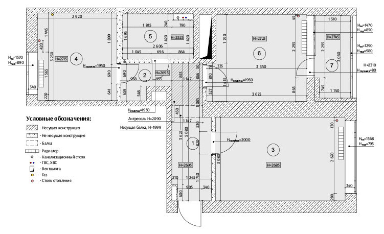
Двухкомнатная квартира в доме 1970г для молодой девушки, работающей в киноиндустрии. Нашей главной задачей было раздвинуть пространство небольшой "распашонки", наполнить ее светом и произведениями искусства, создать стильное, одновременно уютное и эффектное пространство для жизни. . Авторы проекта: Ирина Бородина, Екатерина Малая.
Год реализации: 2022
Стоимость проектирования: 135 000 ₽
г. Москва, улица Плющиха, Центральный административный округ
48 фотографий
















































