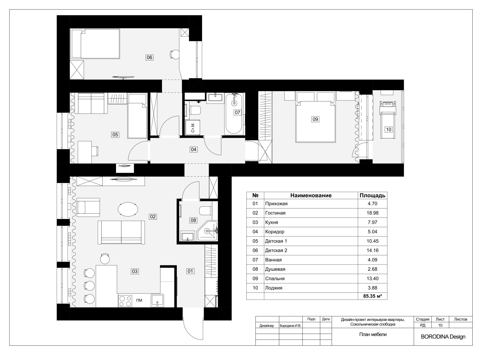
До и После: 4-комнатная квартира из трешки 85 м2 в Москве
Из 3-комнатной квартиры с одной ванной в результате перепланировки получилась 4-комнатная с двумя санузлами для семьи из 4 человек с эпизодически остающейся на ночь няней. . . Проект опубликован на Houzz: https://www.houzz.ru/statyi/do-i-posle-85-kv-m-chetyrehkomnatnaya-kvartira-iz-treshki-stsetivw-vs~159255044 .
Год реализации: 2021
Стоимость проектирования: 275 000 ₽
г. Москва, Восточный административный округ, район Сокольники
54 фотографии


















































