Квартира с панорамным видом на Москву
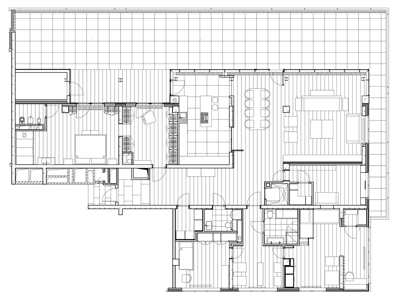
Квартира расположена на 33 этаже и имеет выход на террасу площадью 180 кв. м., откуда открывается великолепный вид на половину Москвы. Дом долго не вводили в эксплуатацию, хозяевам пришлось ждать. Но благодаря задержке удалось внести изменения в проект здания до его окончательной реализации – согласовать с архитектором дома изменение по фасаду и устройство навеса. В гостиной, и спальне появилось панорамное . Большие проемы выходов, открытые в теплое время года, делают террасу и городской ландшафт частью пространства этих комнат. . Пространство функционально разделено на три части: взрослую спальню, детский блок и общее пространство кухни-гостиной. . Хозяева и архитектор Алексей Дунаев проявили единодушие в стремлении сделать простой и функциональный интерьер. Но простота эта кажущаяся, основанная на тщательно проработанной эргономике и внимании к деталям. . Отличительные качества квартиры - её открытость, отсутствие визуальных барьеров с экстерьером, пустые пространства и большое количество мест для хранения, которые архитектор постарался сделать невидимыми. Нет акцента на входных проемах – двери под покраску или стеклянные. Чтобы освободить стены от лишних предметов вместо телевизора выбрали проектор. . белая, практически стерильная. Хозяева стремились к идеальному порядку и просили спрятать всю кухонную утварь за дверцами фасадов. . Заказчики любят готовить и принимать гостей. Единственное жесткое требование – большой длиной 3 м в гостиной, сделанный на заказ по проекту архитектора, чтобы разместить многочисленных друзей и родственников, которые часто собираются вместе. . Спальня родителей представляет из себя обособленное помещение. Входная зона совмещена с большой гардеробной, душевая отделена стеклянной перегородкой, санузел выделен матово-черным блоком. панорамное, с возможностью выхода на террасу. Минималистичное пространство, в котором нейтральный белый фон стен гармонично сочетается с мрамором, металлом, деревом и стеклом, получилось легким и светлым. . Особое внимание было уделено проектированию в детских, т.к. это небольшие пространства где требовалось разместить все. В одной из комнат живут два мальчика. Нижняя кровать трансформируется при необходимости в две и имеет потайной ящик для постельного белья. Деревянная лестница ведет на верхний уровень, напоминающий домик со скатной крышей, который дети прозвали "гнездо". . в комнате старшей дочери так же выполнена по эскизу архитектора, который реализовал ее единым крупным скульптурным объектом “кровать-стол-шкаф”. . . . APARTMENT OVERLOOKING MOSCOW . . Location: Moscow (Russia) . Architects: Alexey Dunaev . Photographs: Sergey Krasyuk . Firm: Architectural bureau PROJECT905 . Project Year: 2016 . Area: 215 м² . About the customer: a modern couple with three children. . The apartment is located on the 33rd floor of a block of flats and has a terrace area of 180 square meters with stunning views of the river and Moscow. . Construction of the building lasted for a very long time, the customers had to wait. But thanks to the delay, we could make changes in the design of the building and approve them by the architects of this residential complex. So, panoramic glazing arose instead of walls with standard window openings. Wide glass doorways open onto the terrace in the warm part of the year allow the urban landscape to penetrate the inner space of rooms. We also designed the canopy along the terrace. . Features of this apartment - its openness, lack of visual barriers to the exterior, empty space and lots of storage space that we tried to make invisible. We desired to make a simple and functional interior. But this seeming simplicity, based on a well-designed ergonomics and attention to details. . The space is functionally divided into three parts: the adult's bedroom, the baby unit and the common space of kitchen and living room. . Kitchen is white, almost sterile. A custom made table in the living room has a 3 m length to accommodate many friends and relatives of the hosts, who like to arrange home parties. . Master bedroom is a secluded zone in the apartment. The entrance is combined with a large dressing room, shower separated from the sleeping area by a glass partition. Toilet is a matte black unit. . Special attention was paid to the design of the furniture in the children's, because it was required to place a great deal in these rather small rooms. We designed a two-level composition of beds in the boys’ room, which the kids called "nest". The lower bed, if necessary, can be folded and has a hidden box for bed linen. . The furniture in the eldest daughter's room is designed as a single sculptural object “Bed-table-bookshelves”. . Several chalkboard walls help children to personalize their space and create surroundings that are unique and playful. .
62 фотографии



















































