Бюджетная квартира на Киевской
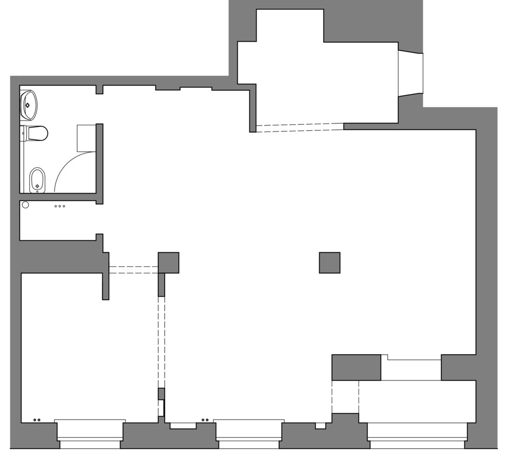
Проект опубликован в Houzz туре: http://www.houzz.ru/ideabooks/60127892/list/houzz-tur-kvartira-v-byvshey-masterskoy-hudozhnitsy . . Площадь : 83 кв. м . Бюджет: 1 300 000 рублей включая мебель, черновые, чистовые материалы и оплату работы строителей. . . Авторство: архитектурное бюро ПРОЕКТ905 . Архитекторы: Алексей Дунаев, Марианна Запольская . Фото: архитектор Алексей Дунаев . . Помещение использовалось в качестве мастерской художника и представляло собой открытое пространство в состоянии, требующем ремонта. Перед архитекторами была поставлена задача адаптировать квартиру для комфортного временного проживания двух взрослых – друзей и коллег заказчика, останавливающихся в квартире во время визитов в Москву или для сдачи в аренду. . Стремясь сохранить максимальную открытость, архитекторы объединили гостиную с кухней, отделив при этом спальню с небольшим кабинетом. В случае если гости захотят остаться на ночь – диван в гостиной раскладывается. . Особенности проекта: стремление вписаться в ограниченный бюджет 1 300 000 рублей. . Вся мебель и предметы интерьера в квартире - IKEA и изготовленные на заказ по чертежам архитекторов шкафы из фанеры. Вместительная гардеробная в прихожей так же оснащена системой хранения из IKEA. . Стены в комнатах оштукатурены и покрашены в белый цвет. Блок кухня-столовая – контрастно черный. Сосновую доску на полу реставрировали и сделали светлее при помощи масла OSMO. . Для освещения кухни и гостиной использованы шинные системы с софитами и несколько простых подвесных светильников. .
29 фотографий




























