Квартира на удице Шелковичная,Киев
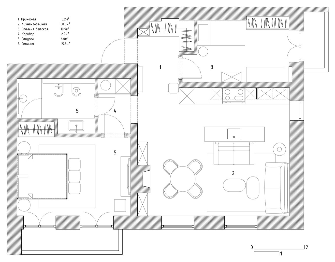
Общая площадь: 68 м2 . . Эта квартира расположена в историческом центре Киева, на живописной жилой улице с прекрасными видами из окон и отсутствием высотной застройки вокруг. Изначально она была поделена на небольшие комнаты по 10-12 метров и казалась темной и тесной, поэтому в первую очередь мы полностью пересмотрели планировочное решение при этом сохранив количество спален. Семья хозяев живет в Москве и часто бывает в Киеве как по делам так и в качестве отдыха, поэтому квартира предназначена для временного пребывания, а в будущем, возможно, для сдачи в аренду. Эту специфику необходимо было учитывать при проектировании также, как и желание заказчиков получить лёгкий светлый и нестареющий интерьер. В результате в центре квартиры разместилось просторное студийное пространство кухни- гостиной, в помещении бывшей гостиной расположилась комфортная главная спальня, а бывшая кухня получила назначение детской или гостевой комнаты. . В процессе реализации нам удалось получить разрешение на устройство дымохода через чердачное помещение дома. Так центром притяжения в гостиной стал настоящий камин — гордость владельцев. . . Фотограф: Евгений Дешко .
22 фотографии






















