Интерьер загородного дома в Подмосковье
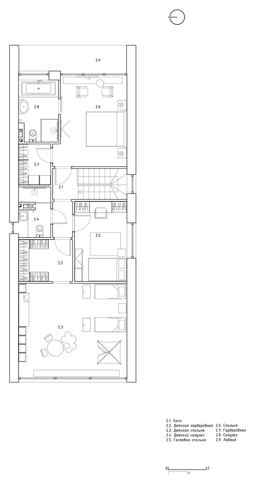
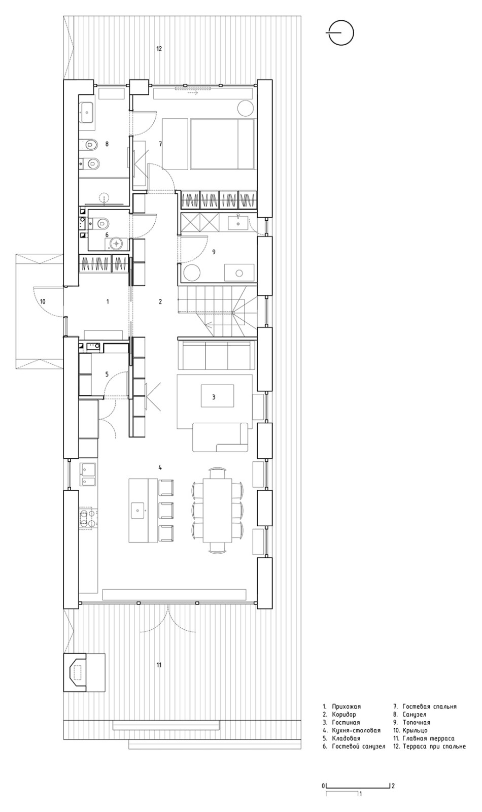
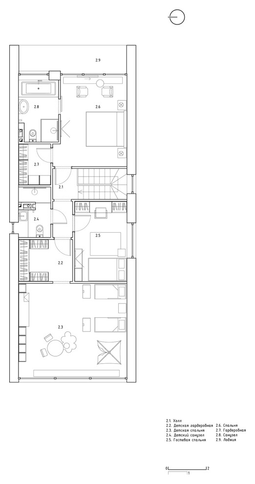
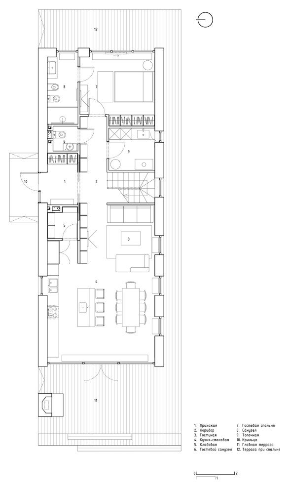
Общая площадь дома : 220 м2 . Это интерьер для молодой семьи с одним, нет, двумя, нет, тремя детьми ... ах, подождите, еще и большая собака. Именно так поменялось техническое задание в процессе реализации обьекта. . Вообще, это комплексный проект загородного дома с участком, в котором мы делали все, начиная от земляных работ до дверной ручки. . Интерьер получился легкий, просторный, демократичный, легко трансформируемый под нужды растущей семьи. Материалы были подобраны безопасные, натуральные, поддающиеся реставрации, учитывая потребности детей в творчестве. . За счёт панорамного остекления и обходных террас внутреннее пространство плавно перетекает в двор-сад, расширяя границы пространства.
Год реализации: 2017
Стоимость проектирования: 525 000 ₽
44 фотографии












































