квартира на пр. Художников
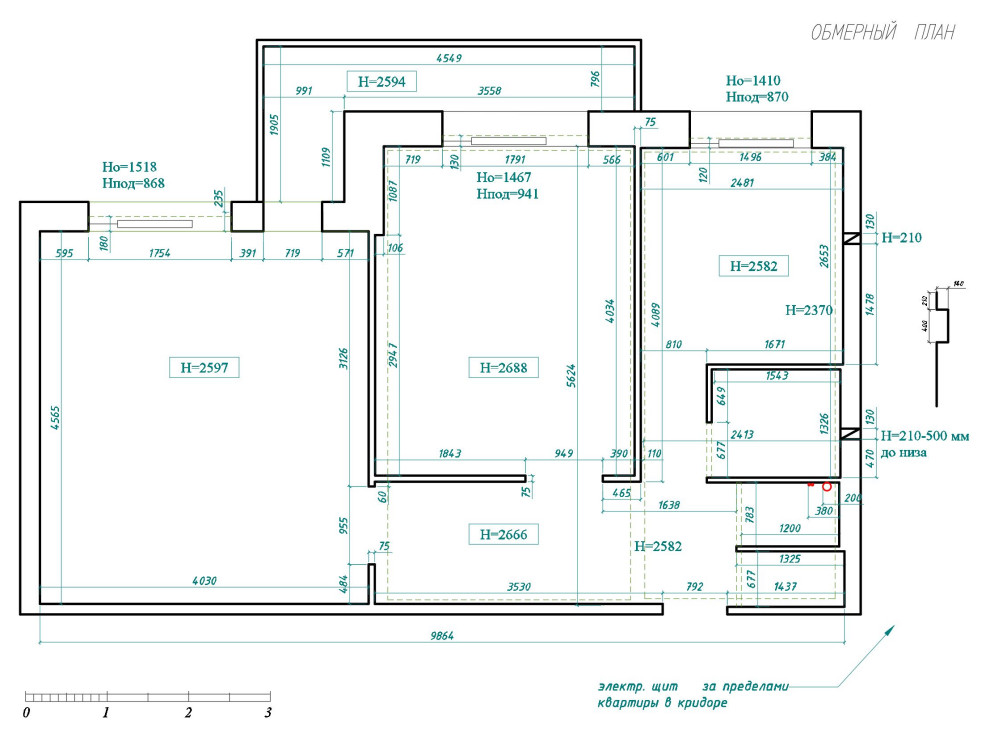
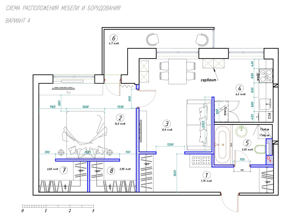
Небольшая квартира в панельном доме подверглась полной перепланировке, что очень неожиданно! С вариантами проектных решений можно ознакомиться в альбоме. обязательным требованием было: как можно больше мест хранения. Отсюда родилась идея длинного - проходящего через всю квартиру - стенного шкафа. Цветовое решение достаточно монохромно, но большую роль играют здесь текстуры. Мягкости горчичных оттенков текстиля противопоставлена жесткая текстура "бетона" в отделке корпусной мебели. . Самое сложное было организовать большой санузел-постирочную и остаться при этом в границе существующих мокрых точек и коридора. В итоге у нас все получилось!
Год реализации: 2020
Стоимость проектирования: 135 000 ₽
г. Санкт-Петербург, Каменноостровский проспект
40 фотографий









































