logo
квартира на пр. Художников

Другие фотографии в проекте квартира на пр. Художников

Вопросы к фото 0

Задайте вопрос

Вам ответят эксперты. Пришлем уведомление, когда вам ответят

Санкт-Петербург

Елена Куртина

Елена Куртина

Архитекторы

Смотреть профиль

4

отзыва

5

Рейтинг

квартира на пр. Художников

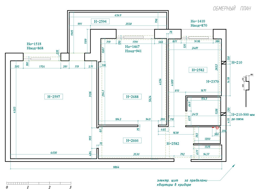
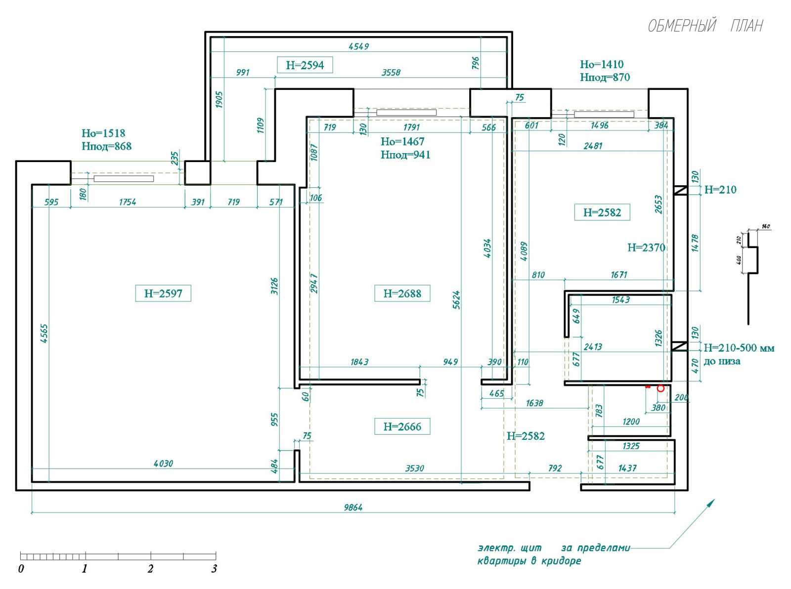
Небольшая квартира в панельном доме подверглась полной перепланировке, что очень неожиданно! С вариантами проектных решений можно ознакомиться в альбоме. обязательным требованием было: как можно больше мест хранения. Отсюда родилась идея длинного - проходящего через всю квартиру - стенного шкафа. Цветовое решение достаточно монохромно, но большую роль играют здесь текстуры. Мягкости горчичных оттенков текстиля противопоставлена жесткая текстура "бетона" в отделке корпусной мебели. . Самое сложное было организовать большой санузел-постирочную и остаться при этом в границе существующих мокрых точек и коридора. В итоге у нас все получилось!

Вопросы к фото 0