
Дизайнеры интерьера
5
·
4 отзыва
квартира на пр. Художников
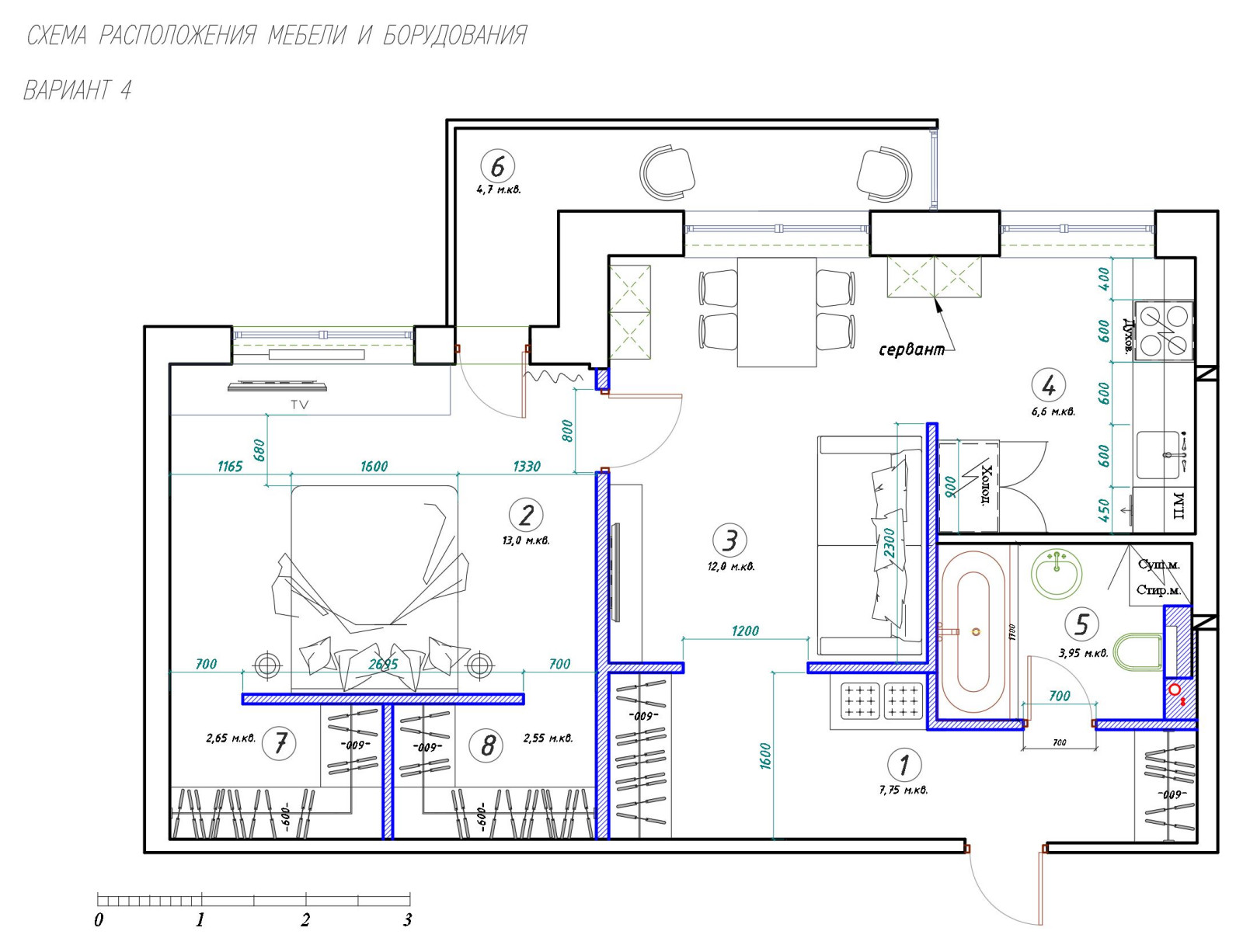
Небольшая квартира в панельном доме подверглась полной перепланировке, что очень неожиданно! С вариантами проектных решений можно ознакомиться в альбоме. обязательным требованием было: как можно больше мест хранения. Отсюда родилась идея длинного - проходящего через всю квартиру - стенного шкафа. Цветовое решение достаточно монохромно, но большую роль играют здесь текстуры. Мягкости горчичных оттенков текстиля противопоставлена жесткая текстура "бетона" в отделке корпусной мебели. . Самое сложное было организовать большой санузел-постирочную и остаться при этом в границе существующих мокрых точек и коридора. В итоге у нас все получилось!
Вопросы к фото 0
Задайте вопрос
Вам ответят эксперты. Пришлем уведомление, когда вам ответят
Ванна, Гостиная, Контемпорари, Ремонт, Санкт-Петербург, Хай-тек, Хранение в шкафу, ванная, ванная комната, двухкомнатная, двушка, дизайн ванной, дизайн двухкомнатной, дизайн двушки, дизайн и ремонт, кухня, лофт, лофт кухня, подвесной унитаз, постирочная, сантехника, светлая спалья, соременный, спалья, стиралка в ванной, товары для стирки, туалет, фреска, хранение в ванной, хранение и организация
Похожие фотографии

Apartments Neva Towers 1
Пример оригинального дизайна: гостиная комната среднего размера в современном стиле с бежевыми стенами, светлым паркетным полом, бежевым полом, многоуровневым потолком, панелями на части стены и акцентной стеной
Вадим Мартынов Екатерина Гатилова

Частная резиденция DRR
Свежая идея для дизайна: идея дизайна в современном стиле - отличное фото интерьера
Portner Architects

Вавилова 4
Стильный дизайн: гостиная комната в стиле неоклассика (современная классика) - последний тренд
Ира Носова

FESTIVAL FLAT
Пример оригинального дизайна: открытая, объединенная гостиная комната среднего размера, в белых тонах с отделкой деревом в современном стиле с белыми стенами, паркетным полом среднего тона, мультимедийным центром и коричневым полом
Екатерина

Гостиная
Пример оригинального дизайна: гостиная комната в современном стиле с коричневым диваном, паркетным полом среднего тона и потолком из вагонки без камина
Александра Протасова

Квартира ул Тверская
На фото: гостиная комната в стиле неоклассика (современная классика) с белыми стенами и многоуровневым потолком с
Олег Михайлов архитектор-дизайнер

Пентхаус в Краснодаре
На фото: идея дизайна в современном стиле с
Денис Мурый

Квартира в Палевском жилмассиве
Идея дизайна: открытая, объединенная гостиная комната среднего размера в скандинавском стиле с белыми стенами, полом из винила, коричневым полом и кирпичными стенами без телевизора
Дмитрий Дубровский

Зал
Источник вдохновения для домашнего уюта: гостиная комната в современном стиле с бежевыми стенами, светлым паркетным полом и бежевым полом
Дмитрий Галаганов

Квартира в ЖК "Василеостровский квартал"
Пример оригинального дизайна: гостиная комната в современном стиле с паркетным полом среднего тона и коричневым полом
Екатерина Савенко

Дом, умный дом(фотографии спальни)
Источник вдохновения для домашнего уюта: идея дизайна в современном стиле
Архитектурная студия Астар проект

Гостиная
Свежая идея для дизайна: маленькая открытая, объединенная гостиная комната в современном стиле с серыми стенами и серым полом без телевизора для на участке и в саду - отличное фото интерьера
Ольга Васильева