Квартира на набережной "Ривер Парк"
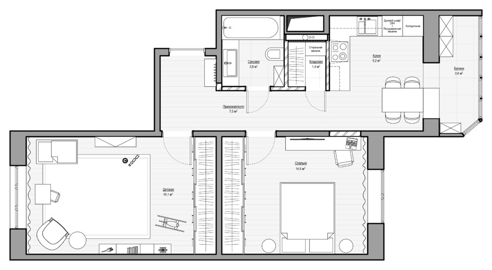
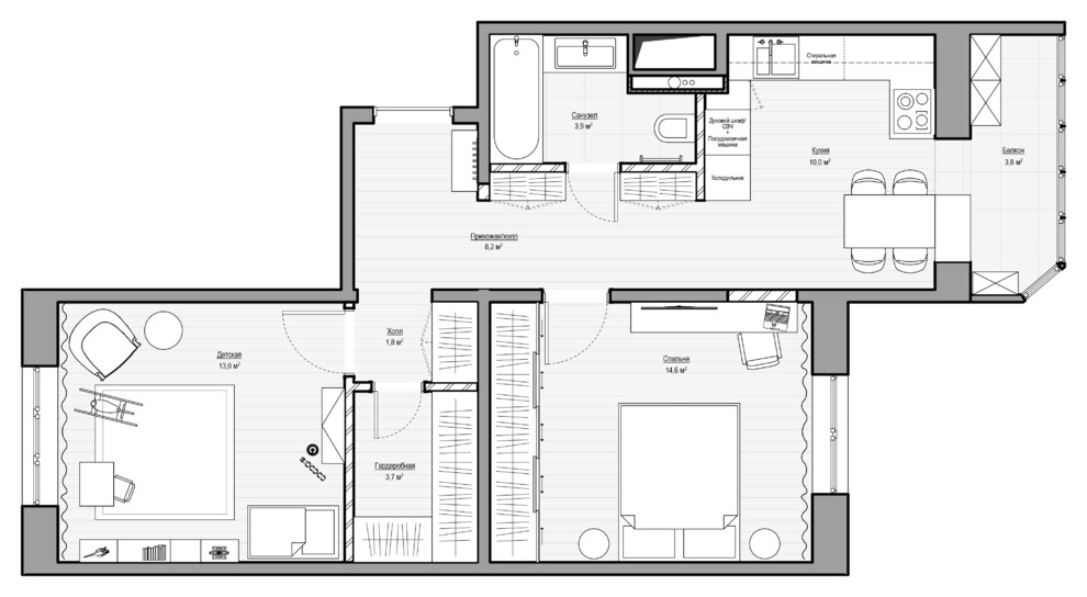
Проект квартиры в ЖК "Ривер Парк" создавался для молодой семьи с маленькой дочерью (1 год). Основные требования заказчиков были следующими: . 1. Отдельная спальня и отдельная детская . 2. Совмещенный санузел . 3. Балкон, объединенный с кухней-столовой . . Изначально было разработано 3 варианта планировочного решения, чтобы оценить возможности пространства.
Год реализации: 2016
8 фотографий








