
Дизайнеры интерьера
5
·
10 отзывов
Квартира на набережной "Ривер Парк"
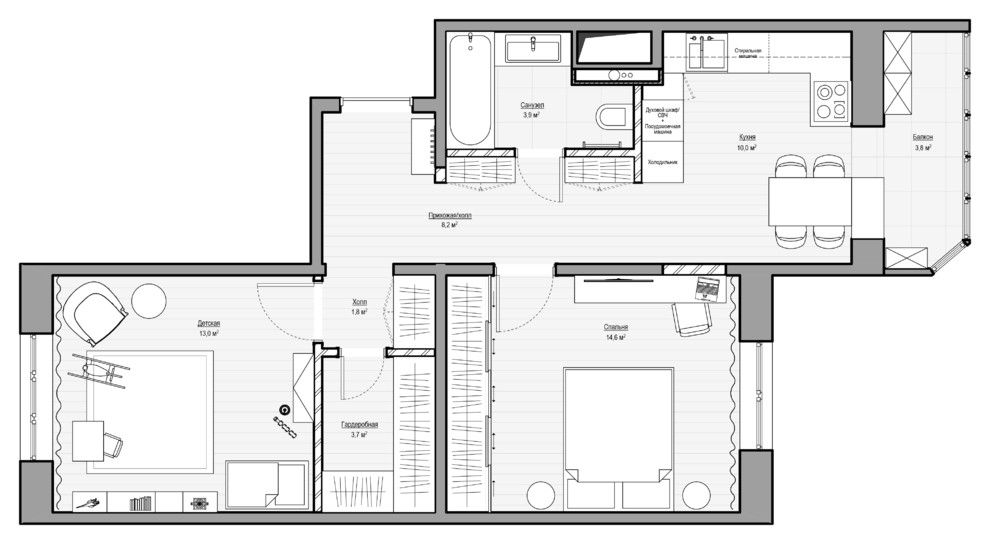
1 вариант планировочного решения: . В прихожей перед кухней в выстроенной нише расположились два неглубоких шкафа, здесь же - вход в санузел. При входе в кухню слева организована колонна со встраиваемой бытовой техников (холодильник, духовка/свч и посудомоечная машина). Стиральная машина (встраиваемая) вынесена в кухню. В детскую вход через небольшой холл. Из этого же холла мы попадаем в гардеробную/кладовую. В спальне хозяев вместительный гардероб, кровать и консоль, которая служит рабочим местом.
Другие фотографии в проекте
Вопросы к фото 0
Задайте вопрос
Вам ответят эксперты. Пришлем уведомление, когда вам ответят




