Квартира Химки
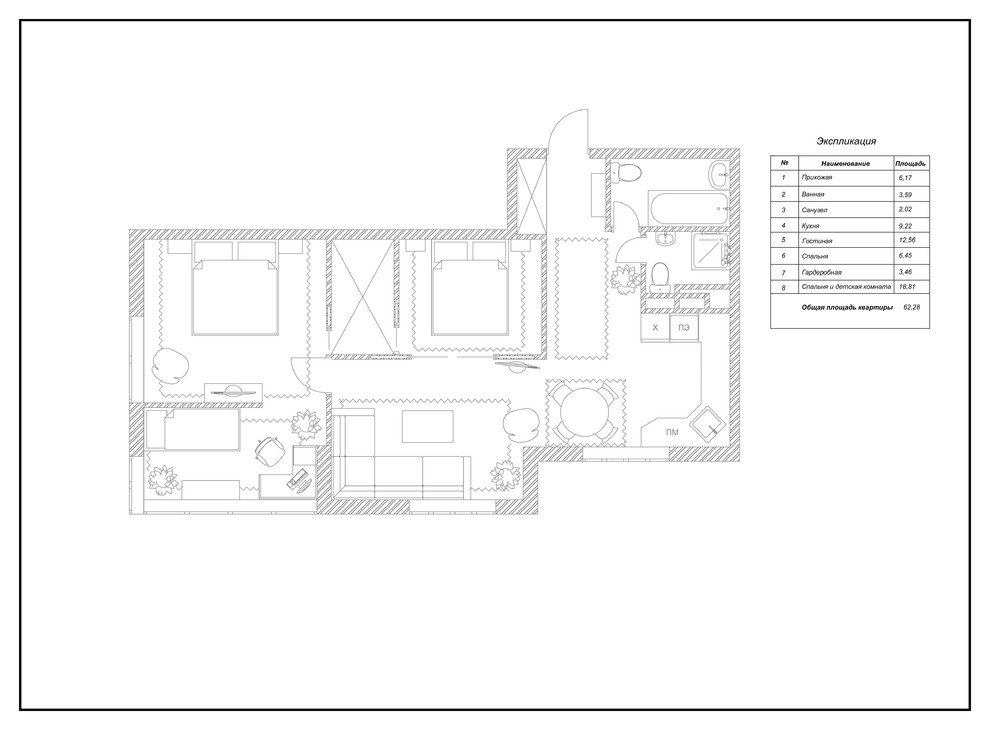
Квартира общей площадью 65 м2 в г.Химки. . На небольшой площади необходимо было спланировать пространство для жизни молодой мамы с маленьким сыном и ее родителей. Чтобы выделить пространство для гостиной, где семья сможет собираться вместе, было решено расположить спальню родителей ближе к общественным зонам, вдали от окон. Чтобы компенсировать недостаток дневного света в спальне, были спроектированы прозрачные перегородки со шторами, отделяющие ее от зоны гостиной. . В глубине квартиры расположилась спальня мамы, которая отделена от спальни родителей удобной гардеробной с возможностью входа из обеих спален. Рядом со спальней мамы, в самой светлой части квартиры с панорамными окнами, находится комната мальчика. . Благодаря продуманному планированию, на небольшой площади квартиры удалось разместить два полноценных санузла, что безусловно добавило комфорта в жизнь семьи.
8 фотографий









