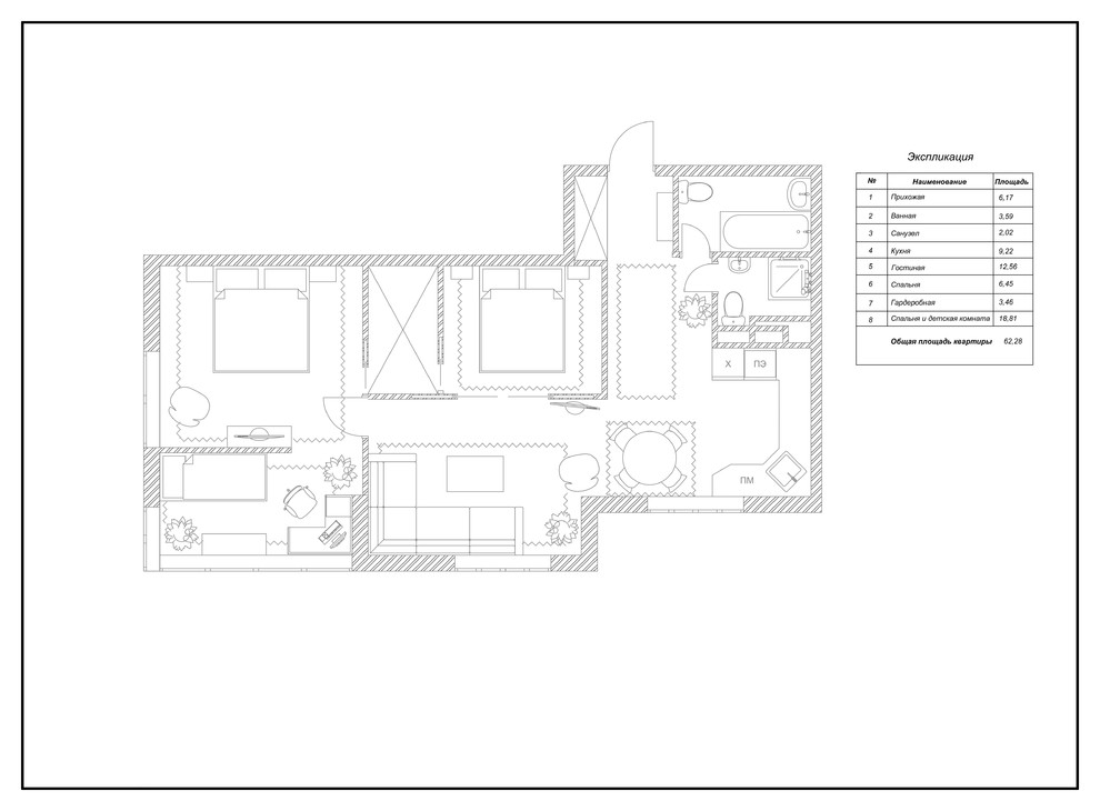
Квартира Химки, планировка

Другие фотографии в проекте Квартира Химки

Квартира Химки, прихожая
Квартира Химки, санузел
Квартира Химки, кухня
Квартира Химки, спальня
Квартира Химки, гостиная
Квартира Химки, спальня
Квартира Химки, детская

Вопросы к фото 0

Задайте вопрос

Вам ответят эксперты. Пришлем уведомление, когда вам ответят

Ванна, Декор, Контемпорари, Химки, ванная, ванная комната, гостиная, декор интерьера, декорирование, дизайн, дизайн интерьера, загородный дом, кухня, план, план расстановки мебели, планировка, планировочное решение, проектирование, чертежи

Julia Alieva

Julia Alieva

Дизайнеры интерьера

Смотреть профиль

0

отзывов

0

Рейтинг

Квартира Химки

Квартира общей площадью 65 м2 в г.Химки. . На небольшой площади необходимо было спланировать пространство для жизни молодой мамы с маленьким сыном и ее родителей. Чтобы выделить пространство для гостиной, где семья сможет собираться вместе, было решено расположить спальню родителей ближе к общественным зонам, вдали от окон. Чтобы компенсировать недостаток дневного света в спальне, были спроектированы прозрачные перегородки со шторами, отделяющие ее от зоны гостиной. . В глубине квартиры расположилась спальня мамы, которая отделена от спальни родителей удобной гардеробной с возможностью входа из обеих спален. Рядом со спальней мамы, в самой светлой части квартиры с панорамными окнами, находится комната мальчика. . Благодаря продуманному планированию, на небольшой площади квартиры удалось разместить два полноценных санузла, что безусловно добавило комфорта в жизнь семьи.

Вопросы к фото 0