Дом Серпухов
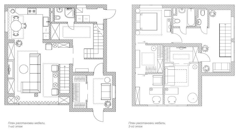
Частный дом общей площадью 140 м2 в г.Серпухов. Заказчики семья - муж, жена и ребенок, мальчик одиннадцати лет. . Стояла задача сделать грамотное зонирование, спроектировать эргономичное жилое пространство комфортное для всех членов семьи. . Необходимо было выделить место для рабочего кабинета, гардеробной, детской комнаты, спальни родителей, гостиной и кухни. Также стояла задача увеличить количество санузлов и создать дополнительные места хранения для лыжного инвентаря, так как все члены семьи увлекаются горными лыжами.
Год реализации: 2015
4 фотографии




