Коттеджный поселок из 40 домов
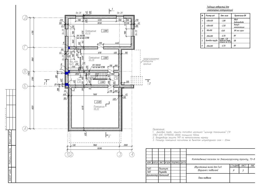
Коттеджный поселок в г.Барнауле. Были разработаны различные по площади и размеру коттеджи, в одинаковом стилистическом решении, отвечающему концепции проектируемого поселка .
Год реализации: 2014
Стоимость проектирования: 34 999 ₽
г. Барнаул, 73Б Змеиногорский тракт
13 фотографий













