
Архитекторы
0
Коттеджный поселок из 40 домов
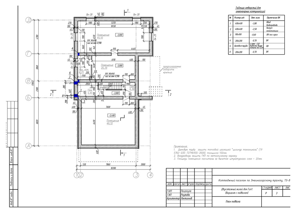
Кладочный план цокольного этажа коттеджа, с указанием всех необходимых для постройки размеров.
Другие фотографии в проекте
Вопросы к фото 0
Задайте вопрос
Вам ответят эксперты. Пришлем уведомление, когда вам ответят




