
Архитекторы
0
Коттеджный поселок из 40 домов
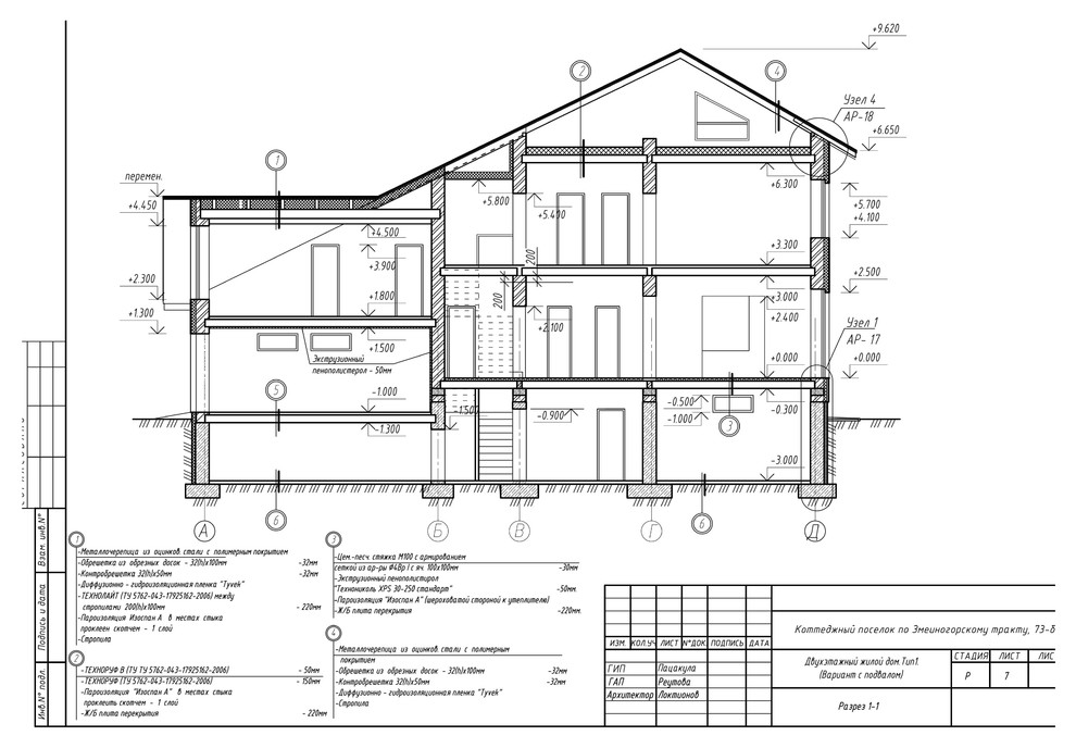
Разрез дома с указанием высотных отметок и составов конструкций
Другие фотографии в проекте
Вопросы к фото 0
Задайте вопрос
Вам ответят эксперты. Пришлем уведомление, когда вам ответят

Архитекторы
0
Разрез дома с указанием высотных отметок и составов конструкций
Другие фотографии в проекте
Вам ответят эксперты. Пришлем уведомление, когда вам ответят