Коттедж в стиле Хай-Тек
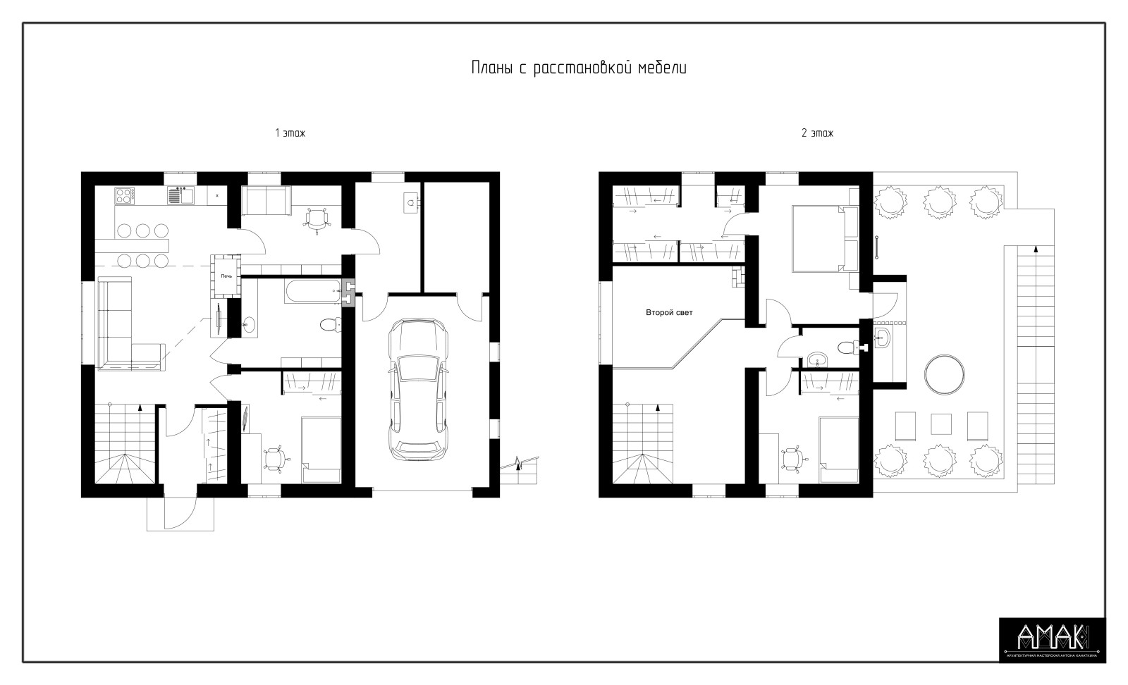
В данной проекте заложено: три спальни, гостиная со вторым светом, открытая терраса на втором этаже с мангальной зоной и ветрогенераторы на кровле. Система двойного фасада с необычным геометрическим рисунком, придаёт изысканный вид с эксклюзивным дизайном. Ахроматический вид создаёт особое ощущение стиля хай-тек.
Год реализации: 2019
Стоимость проектирования: 12 250 000 ₽
г. Тюмень, улица Родниковая
7 фотографий








