
Архитекторы
0
Коттедж в стиле Хай-Тек
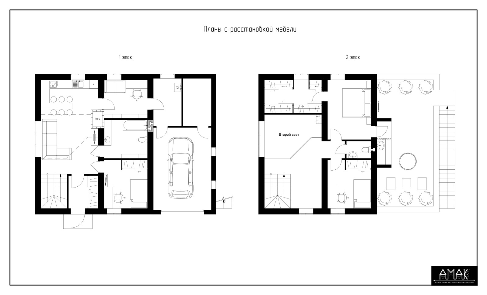
В данной проекте заложено: три спальни, гостиная со вторым светом, открытая терраса на втором этаже с мангальной зоной и ветрогенераторы на кровле. Система двойного фасада с необычным геометрическим рисунком, придаёт изысканный вид с эксклюзивным дизайном. Ахроматический вид создаёт особое ощущение стиля хай-тек.
Другие фотографии в проекте
Вопросы к фото 0
Задайте вопрос
Вам ответят эксперты. Пришлем уведомление, когда вам ответят




