Дом-таунхаус на две семьи
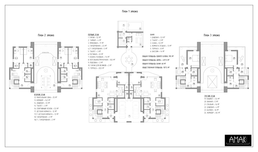
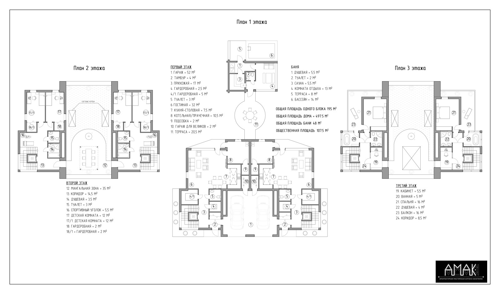
Задача домов-таунхаусов– это объединение и компактность. В таких домах одна стена является смежной. Когда в наличии есть участок в 10 соток, и большая дружная семья, эти два события можно объединить. И увеличить полезную площадь участка, за счёт этажности дома. Данный проект своей идеей помогает объединять дружественные семьи с общими интересами или большие семьи с несколькими поколениями: дети, взрослые и родители. Дом делится на две части. Каждая часть дома имеет 187 кв.м. общей площади. У каждого имеется отдельный вход и общий гараж. Благодаря данной планировке дома, одному поколению не придётся нарушать свободу другого. Тем самым отношения в семье будут всегда в гармонии, ведь каждый может уйти в свою часть дома. Два блока дома стыкуются на первом этаже, вдоль помещения кухни и котельной. Первый этаж вмещает в себя: общий гараж на два автомобиля, тамбур, прихожую, гардеробные, лестницу, лифт, гостиную комнаты, кухню с обеденной зоной, котельную с прачечной и туалет. На втором этаже расположились: коридор, спортивный уголок, душевая комната, туалет, две детские комнаты и общая терраса на две части дома с мангальной зоной. В результате эксплуатируемой кровли на втором этаже, в кухне получилось разместить световые короба, которые улучшат инсоляцию помещения дневным светом. В третий этаж вместились: коридор, ванная, туалет, кабинет, спальня, гардероб. Ванная комната имеет панорамные окна и выход, аналогично спальной комнаты – на балкон, где располагается место для отдыха. На участке разместилась ещё терраса для утреннего кофе и баня, в которую входит: комната отдыха, туалет, душевая, сауна и уличный бассейн. В проекте заложены солнечные панели и ветряные мельницы для добычи экологически чистой энергии, которой хватит для потребления всего дома.
7 фотографий








