Комплектация и ремонт кухни в Скандинавском стиле
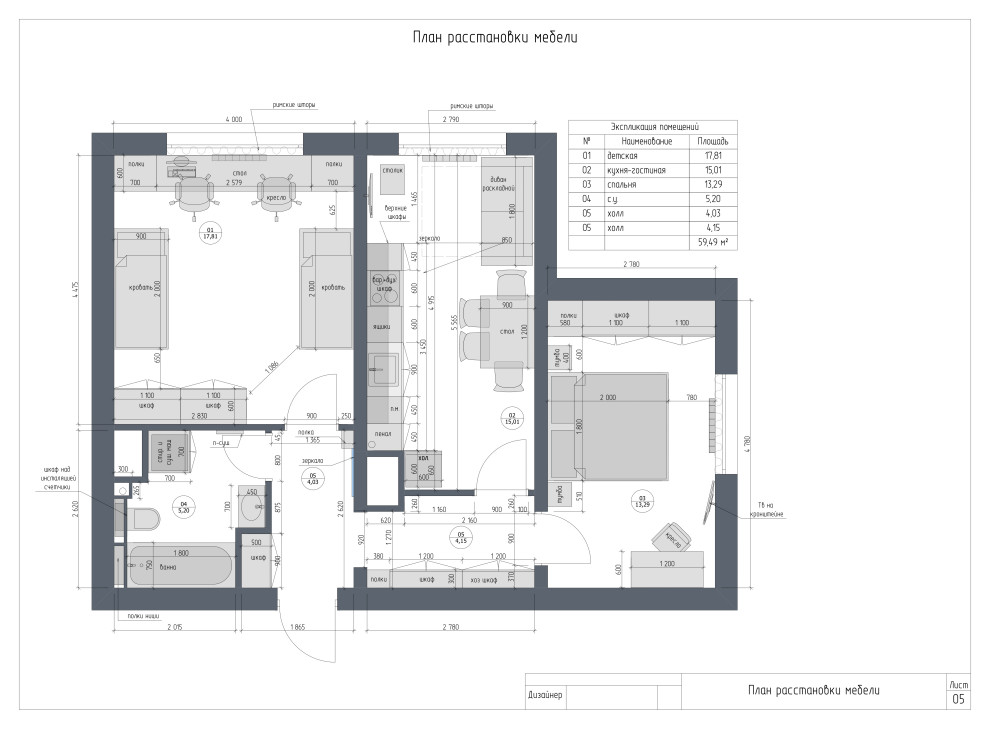
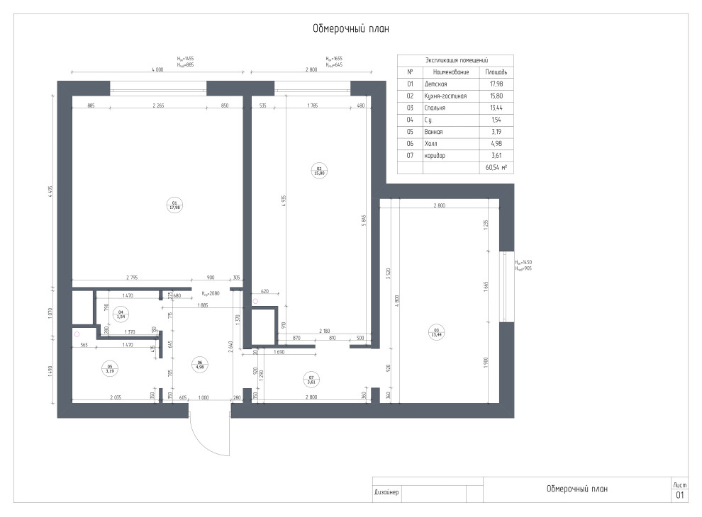
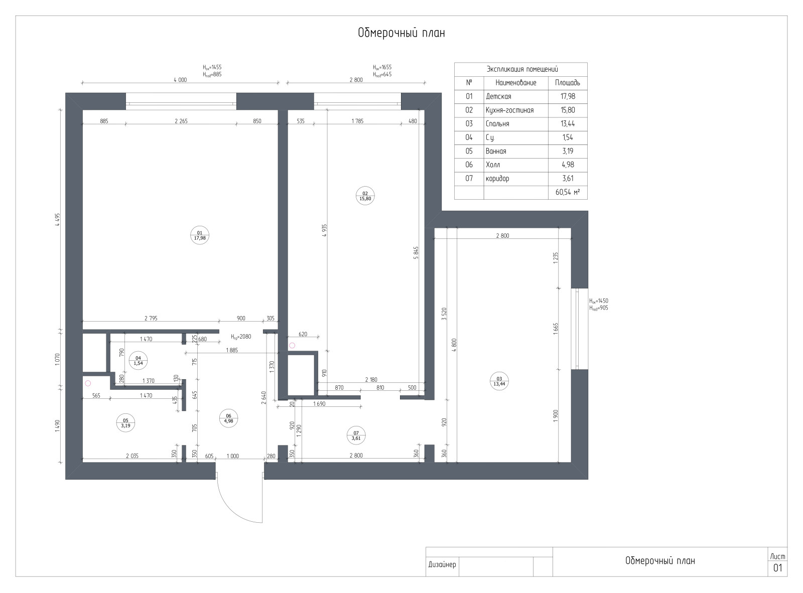
Задача: . - разработать пакет чертежей; . - концептуальный коллаж; . - ведомость материалов и мебели. . . Сроки на ремонт были максимально сжаты. Все материалы использованные в проекте подбирали из наличия. Из пожеланий на небольшой площади организовать зону отдыха с TV.
Год реализации: 2021
Стоимость проектирования: 525 000 ₽
10 фотографий










