Комплектация и ремонт кухни в Скандинавском стиле

Другие фотографии в проекте Комплектация и ремонт кухни в Скандинавском стиле

Вопросы к фото 0

Задайте вопрос

Вам ответят эксперты. Пришлем уведомление, когда вам ответят

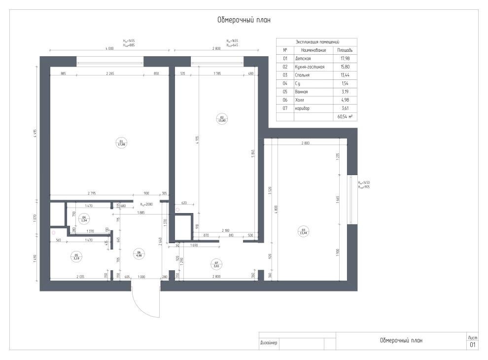
План выключателей с указанием линий включения, План размещения и привязки осветительных приборов, План размещения и привязки розеток и выключателей, Скандинавский, Тула, обмерочный план, план расстановки мебели

DARS

Дизайнеры интерьера

Смотреть профиль

1

отзыв

5

Рейтинг

Комплектация и ремонт кухни в Скандинавском стиле

Задача: . - разработать пакет чертежей; . - концептуальный коллаж; . - ведомость материалов и мебели. . . Сроки на ремонт были максимально сжаты. Все материалы использованные в проекте подбирали из наличия. Из пожеланий на небольшой площади организовать зону отдыха с TV.

Вопросы к фото 0