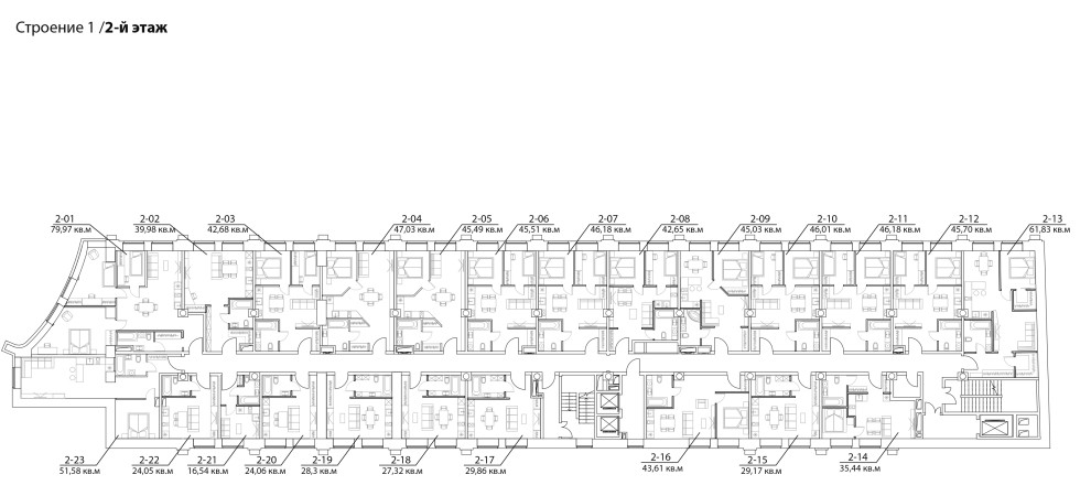
Клейн Хаус
Реконструкция здания Чаеразвесочной фабрики под аппартаменты. . Стиль Лофт обусловлен старыми кирпичными стенами здания. . .
Год реализации: 2018
15 фотографий
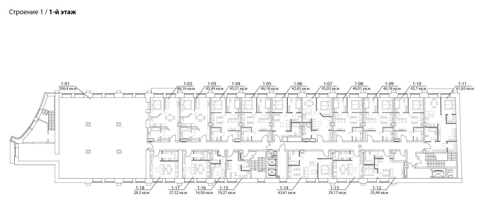
Реконструкция здания Чаеразвесочной фабрики под аппартаменты. . Стиль Лофт обусловлен старыми кирпичными стенами здания. . .
15 фотографий
