logo
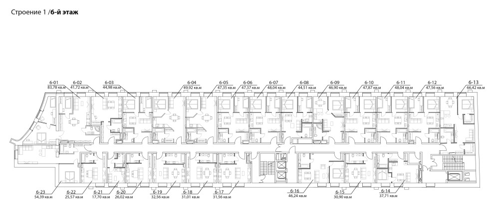
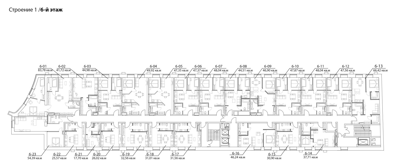
6 этаж

Другие фотографии в проекте Клейн Хаус

Вопросы к фото 0

Задайте вопрос

Вам ответят эксперты. Пришлем уведомление, когда вам ответят

Индустриальный, Москва, планировки, планы, расстановка мебели

Анна Александрова

Анна Александрова

Архитекторы

Смотреть профиль

0

отзывов

0

Рейтинг

Клейн Хаус

Реконструкция здания Чаеразвесочной фабрики под аппартаменты. . Стиль Лофт обусловлен старыми кирпичными стенами здания. . .

Вопросы к фото 0