'' Как мы из гаража сделали детскую комнату ’’
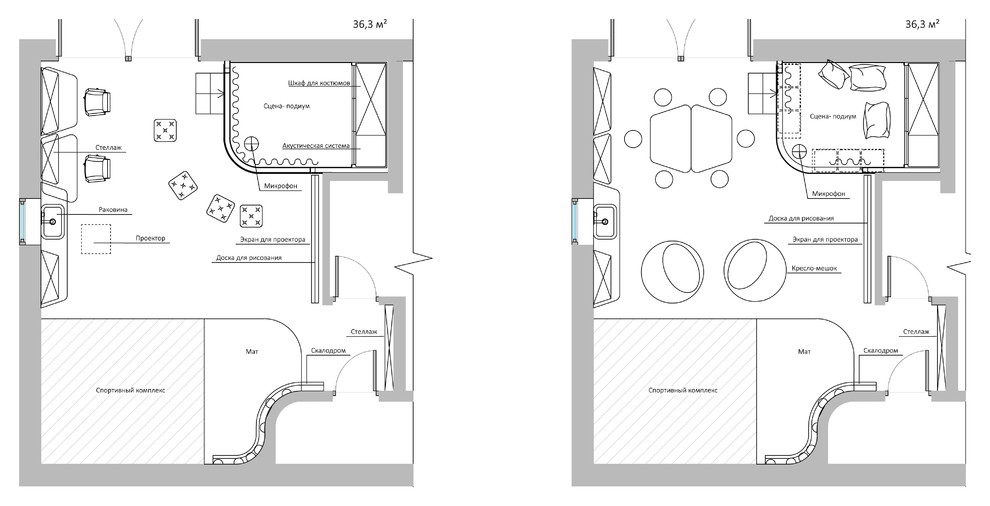
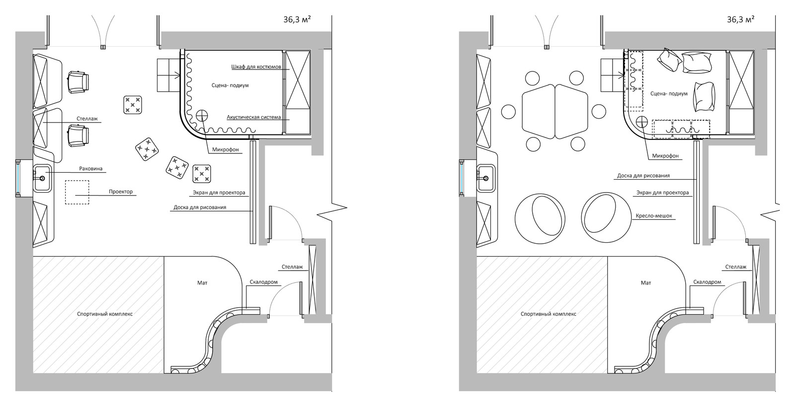
'' Как мы из гаража сделали детскую комнату ’’ . С появлением детей накапливается много детского инвентаря, зачастую весь дом превращается в детскую. В существующем загородном доме трудно было найти место для игровой комнаты. Тогда было принято решение реконструировать гараж в детскую комнату. Детям необходимо предоставить разнообразие видов деятельности, чтобы не наскучило. Мы постарались насытить детскую множеством функций. Например сцена со шторами на электроприводе, за кулисами которой имеется шкаф для переодевания с различными костюмами, позволяет детям стать актерами в театре. По сценой находится место для хранения подушек и пуфов, которые предназначены для зрителей театрального представления. В комнате для детей также имеется доска для рисования, над ней экран для проектора, чтобы устраивать сеансы кинопросмотра. Система стеллажей представляет собой набор ящиков и полок с разно-форматными секциями. В комнате кроме перечисленного имеются : скалодром, спортивный уголок, детская игровая кухня с настоящей раковиной и подводом воды, столы, которые собираются в шестиугольник для совместных занятий.
4 фотографии





