
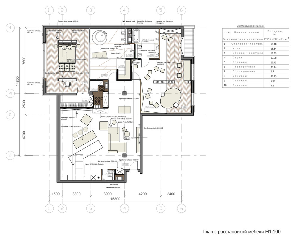
Квартира в ЖК "Lumiere"
6

Дизайнеры интерьера

Квартира в ЖК "Lumiere"
6

'' Как мы из гаража сделали детскую комнату ’’
4

«Дом на Дворянской»
12

Частный спа- комплекс в загородной резиденции
14

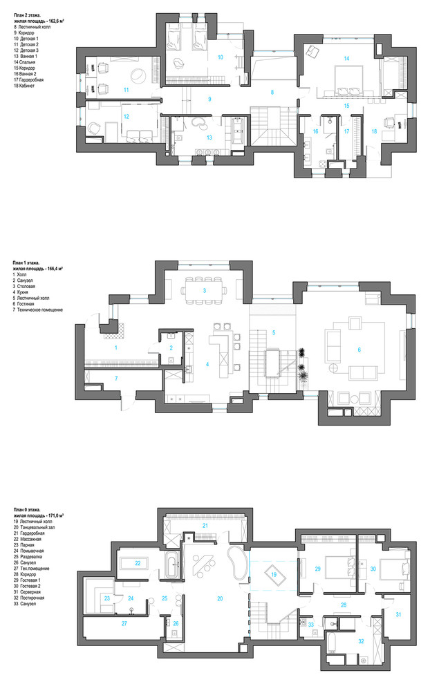
Интерьер загородного дома для большой семьи
16

Небольшой офис в городе Санкт- Петербург
0

Терраса в загородной резиденции
8

Интерьер квартиры в «космическом» стиле / Авиагородок (Санкт-Петербург)
9

Дом как территория Wellness
0
Нет отзывов
Профессиональное архитектурное проектирование и дизайн интерьеров, ведение строительства, реконструкции, ремонта и отделки помещений. Многолетний опыт работы с объемом и пространством, материалами и предметами дизайна, позволяет разрабатывать и реализовывать уникальные решения в области архитектуры и дизайна.
