logo
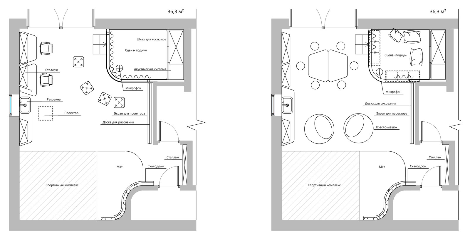
'' Как мы из гаража сделали детскую комнату ’’

Другие фотографии в проекте '' Как мы из гаража сделали детскую комнату ’’

'' Как мы из гаража сделали детскую комнату ’’
'' Как мы из гаража сделали детскую комнату ’’
'' Как мы из гаража сделали детскую комнату ’’

Вопросы к фото 0

Задайте вопрос

Вам ответят эксперты. Пришлем уведомление, когда вам ответят

kidsroom, Дизайнер интерьеров, авторский надзор, дети, детская, детская комната, дизайн интерьера, дизайнер интерьера, интерьер, комната для детей, реализованные интерьеры, реализованные обьекты, спальня, сцена