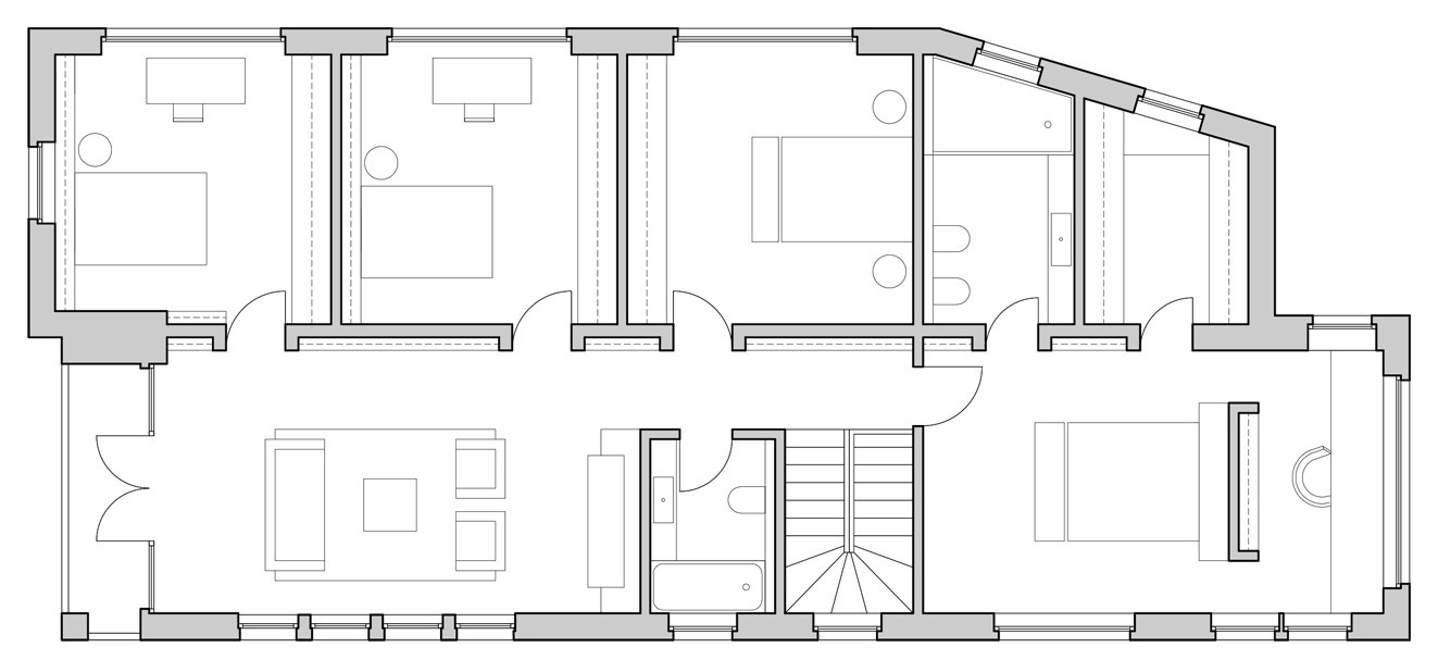
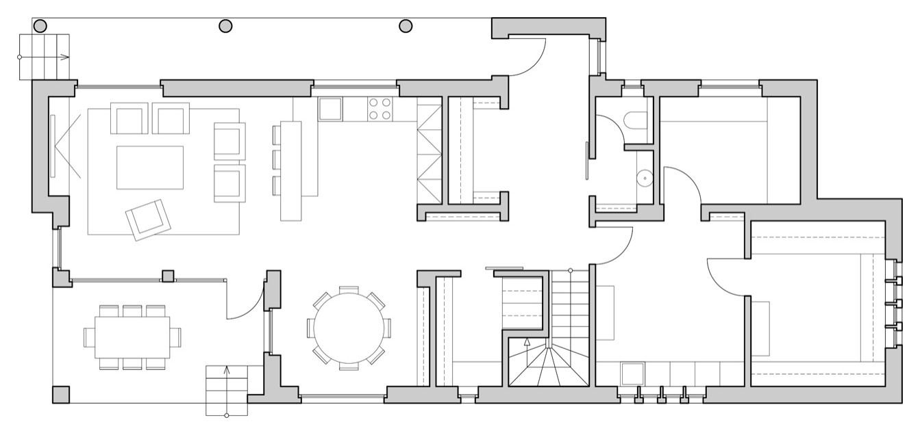
Интерьер дома в Бузаево
В интерьер дома вместе со светом проникает орнаментальность и цвета фасада. Игровые декоративные объемы комнат говорят на языке средневековых интерьеров и площадей. Вырванные из контекста орнаменты фасадов превращаются в символы и тотемы.
Год реализации: 2020
г. Москва, Центральный административный округ
28 фотографий




























