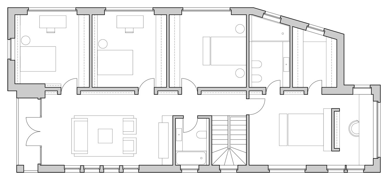
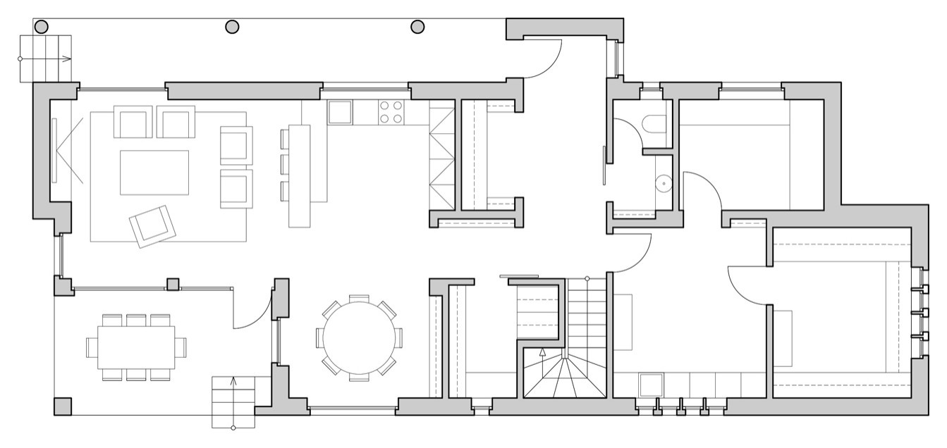
Дом в "Бузаево"
Орнаментальный боковой фасад дома в Бузаево, выходит на яблоневый сад и напоминает большой витраж старой профессорской дачи. Часть орнамента декоративная, а часть прорезана окнами. Массивный боковой фасад становится ажурным и воспринимается как часть садового павильона или беседки. Двухчастный фасад видимый с дороги стоит в глубине участка и кажется меньше чем есть на самом деле.
Год реализации: 2020
г. Москва, Центральный административный округ
18 фотографий


















