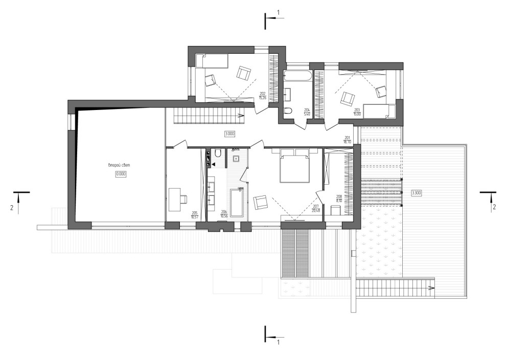
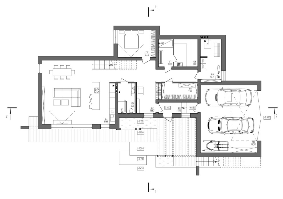
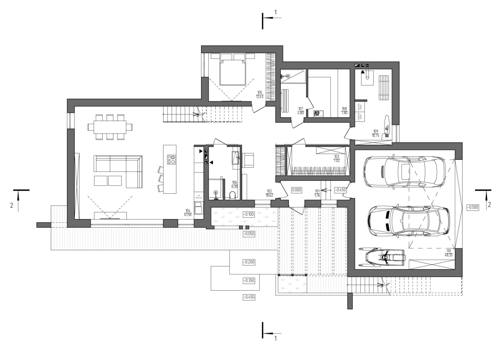
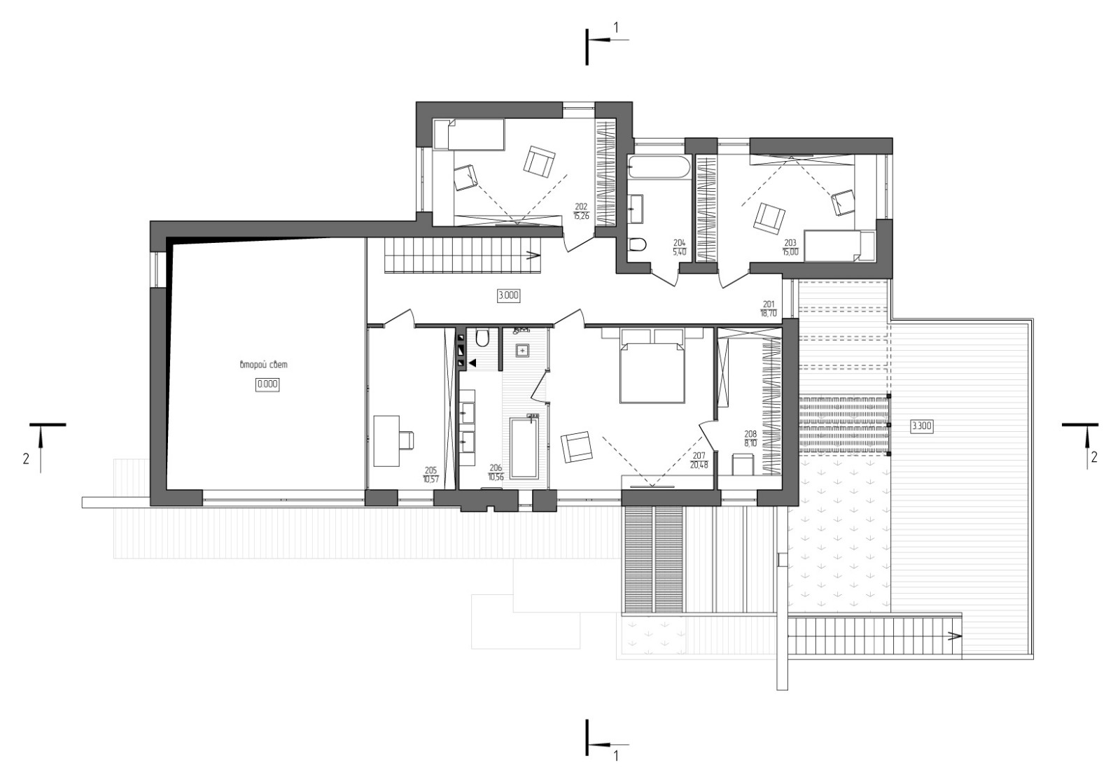
Индивидуальный жилой дом A612 в коттеджном поселке «Алые Паруса»
Объект располагается в коттеджном поселке «Алые Паруса» в 20 километрах от Екатеринбурга. Индивидуальный жилой дом запроектирован для проживания молодой семьи и реализован в стиле минимализм. Одним из ярких решений в доме является открытая терраса и система лестниц, организовавшие различные сценарии деятельности. На террасу предусмотрено два выхода: один реализован посредством лестницы, ведущей с прилегающей территории и акцентированной геометричным порталом из окисленного металла, другой - со второго этажа дома. На придомовой территории запроектирована крытая мангальная зона.
Год реализации: 2015
г. Екатеринбург
13 фотографий














