BO House
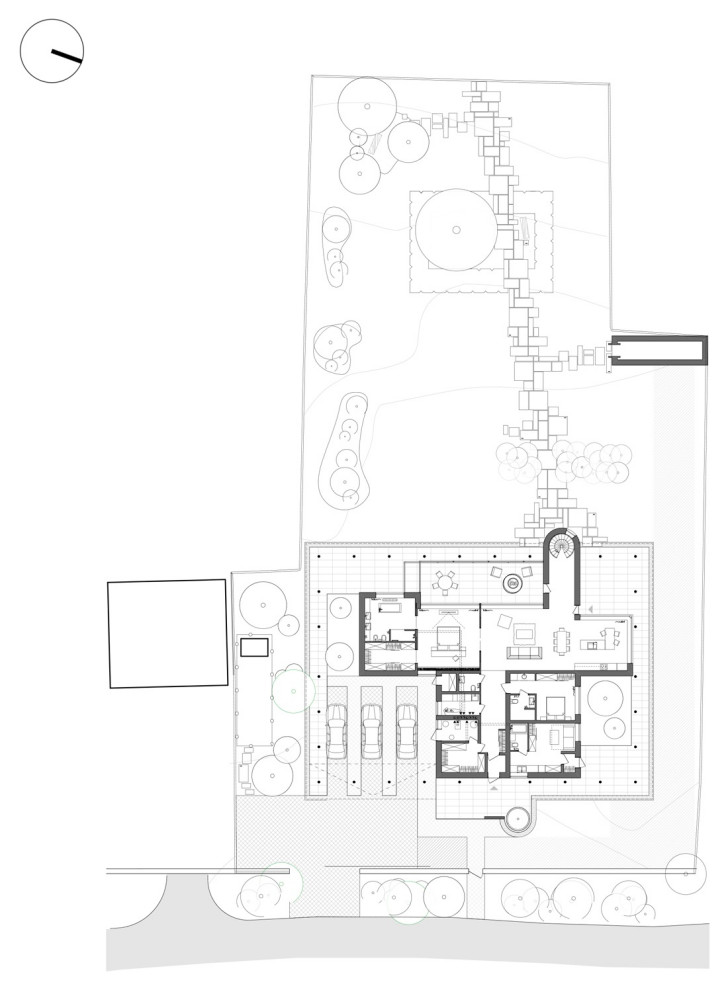
Объект располагается в поселке Бобровский, пригороде Екатеринбурга и является современной интерпретации интернационального стиля. Индивидуальный жилой дом решен в двухэтажном лаконичном объеме с включением таких акцентов, как лестница, вынесенная в отдельный цилиндрический объем и галерея с колоннадой, окрашенной в алый цвет. Решение дома в два надземных этажа было продиктовано контекстом, который в основном состоит из зданий двух- и трехэтажной застройки. . . Дом предусматривает проживания одной семьи с возможностью размещения гостей и обслуживающего персонала (охраны, садовника) и включает в себя в рамках первого этажа зону прихожей, общесемейные помещения, спальную зону, гостевую зону и технические помещения (прачечная, сан. узел, кладовая и др.). Для обслуживающего персонала предусмотрена отдельная студия в структуре дома с входом с северного фасада. На втором этаже располагается кабинет и терраса для отдыха и дружеских встреч. На террасе второго этажа располагается летняя кухня, зоны столовой и отдыха. Решение террасы второго этажа обусловлено желанием клиента изолироваться от внешнего наблюдателя. В подвальном этаже дома находится домашний кинотеатр с санузлом и вентиляционной камерой. . . На обходной галерее в районе гостиной организована зона барбекю с возможностью закрытия посредством системы складного остекления («гармошка») для эксплуатации в межсезонье. . . Благоустройство территории в целом выполнено минималистично с включением центрального композиционного элемента приватной зоны для общения, решенной с живой изгородью из красного дерена и красного клена.
21 фотография






















