logo
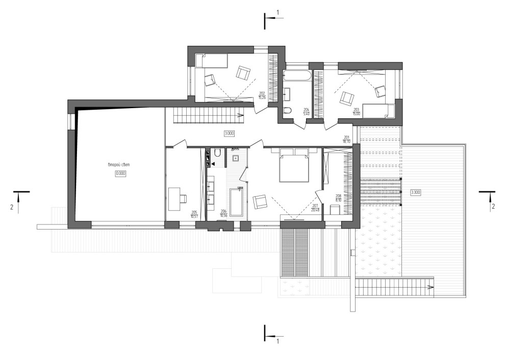
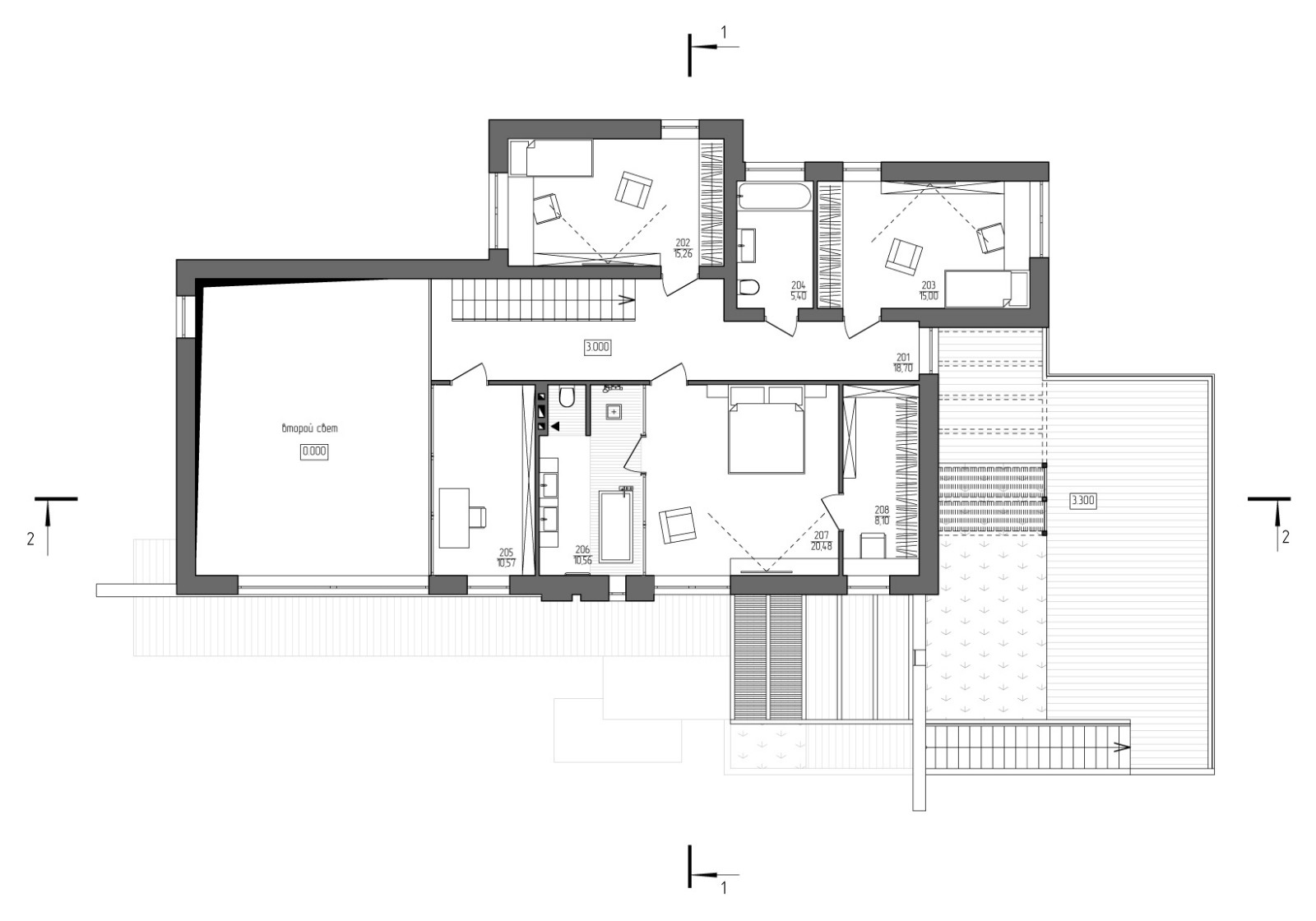
Индивидуальный жилой дом A612 в коттеджном поселке «Алые Паруса»

Другие фотографии в проекте Индивидуальный жилой дом A612 в коттеджном поселке «Алые Паруса»

Индивидуальный жилой дом A612 в коттеджном поселке «Алые Паруса»
Индивидуальный жилой дом A612 в коттеджном поселке «Алые Паруса»
Индивидуальный жилой дом A612 в коттеджном поселке «Алые Паруса»
Индивидуальный жилой дом A612 в коттеджном поселке «Алые Паруса»
Индивидуальный жилой дом A612 в коттеджном поселке «Алые Паруса»
Индивидуальный жилой дом A612 в коттеджном поселке «Алые Паруса»

Вопросы к фото 0

Задайте вопрос

Вам ответят эксперты. Пришлем уведомление, когда вам ответят