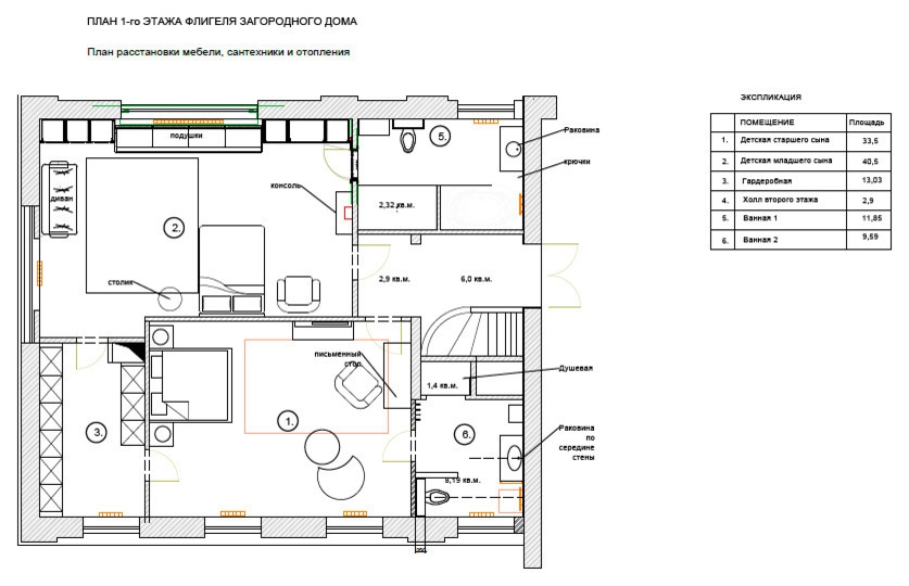
Яркий флигель - территория детей
Семья заказчицы - большая, динамичная, любящая путешествия и новые впечатления - нуждалась в расширении их загородного дома. Было решено пристроить к дому отдельный флигель, где дети на своей территории могли бы принимать гостей. Интерьер дома мы сделали ярким, насыщенным деталями, разными фактурами и узорами, чтобы и находясь дома, дети и хозяйка не скучали.
Год реализации: 2015
Стоимость проектирования: 5 250 000 ₽
г. Москва, Центральный административный округ
16 фотографий
















