
Дизайнеры интерьера
4.93
·
15 отзывов
Яркий флигель - территория детей
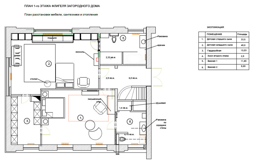
фото: Евгений Кулибаба. Ванная старшего сына оформлена по схожему принципу с детской ванной. Тумба под раковину той же модели, но другого цвета. На полу - "ковер" из керамической плитки. Дизайн ковра мы создавали сами, комбинируя однотонную плитку с небольшим количество узора, что позволило сэкономить.
Другие фотографии в проекте
Вопросы к фото 0
Задайте вопрос
Вам ответят эксперты. Пришлем уведомление, когда вам ответят
$$$, Undermount, Белый, Большой, Ванная комната, Викторианский, Детская ванная, Керамическая плитка, Красный, Многоцветный, Москва, Мрамор, Ниша, Плитка «кабанчик», Подвесной, Раздвижная дверь, Римские шторы, Синий, Фасад с утопленной панелью, аксессуары, белый плинтус, бордовая тумба, бордовый цвет в интерьере, бра, голубой, декор стен, ковер из плитки, красная мебель, красный пуф, малиновый пуф, мраморная столешница, полотенцесушитель, пуф, римская штора, синий полотенцесушитель, синий цвет в интерьере, хрустальные бра, черный мрамор, экран на батареи, яркий интерьер
Похожие фотографии

Счастливое детство
Стильный дизайн: большая детская ванная комната в викторианском стиле с фасадами с выступающей филенкой, коричневыми фасадами, гидромассажной ванной, душем в нише, инсталляцией, разноцветной плиткой, керамической плиткой, синими стенами, полом из цементной плитки, врезной раковиной и мраморной столешницей - последний тренд
Maria Cherck

Счастливое детство
Пример оригинального дизайна: большая детская ванная комната в викторианском стиле с фасадами с выступающей филенкой, коричневыми фасадами, гидромассажной ванной, душем в нише, инсталляцией, разноцветной плиткой, керамической плиткой, синими стенами, полом из цементной плитки, врезной раковиной и мраморной столешницей
Maria Cherck

Счастливое детство
Свежая идея для дизайна: большая детская ванная комната в викторианском стиле с фасадами с выступающей филенкой, коричневыми фасадами, гидромассажной ванной, душем в нише, инсталляцией, разноцветной плиткой, керамической плиткой, синими стенами, полом из цементной плитки, врезной раковиной и мраморной столешницей - отличное фото интерьера
Maria Cherck

Квартира в стиле неоклассика
Источник вдохновения для домашнего уюта: детская ванная комната среднего размера с фасадами с утопленной филенкой, белыми фасадами, отдельно стоящей ванной, душем в нише, инсталляцией, белой плиткой, керамической плиткой, синими стенами, полом из керамогранита, врезной раковиной, столешницей из искусственного камня, синим полом, душем с распашными дверями, белой столешницей, гигиеническим душем, тумбой под одну раковину, подвесной тумбой и обоями на стенах
Евгения Княжева

Квартира в стиле неоклассика
Идея дизайна: детская ванная комната среднего размера с фасадами с утопленной филенкой, белыми фасадами, отдельно стоящей ванной, душем в нише, инсталляцией, белой плиткой, керамической плиткой, синими стенами, полом из керамогранита, врезной раковиной, столешницей из искусственного камня, синим полом, душем с распашными дверями, белой столешницей, гигиеническим душем, тумбой под одну раковину, подвесной тумбой и обоями на стенах
Евгения Княжева

Квартира в стиле неоклассика
Свежая идея для дизайна: детская ванная комната среднего размера с фасадами с утопленной филенкой, белыми фасадами, отдельно стоящей ванной, душем в нише, инсталляцией, белой плиткой, керамической плиткой, синими стенами, полом из керамогранита, врезной раковиной, столешницей из искусственного камня, синим полом, душем с распашными дверями, белой столешницей, гигиеническим душем, тумбой под одну раковину, подвесной тумбой и обоями на стенах - отличное фото интерьера
Евгения Княжева

Загородный дом в Раменском
Пример оригинального дизайна: большая ванная комната в классическом стиле с фасадами с утопленной филенкой, коричневыми фасадами, душем в нише, инсталляцией, бежевой плиткой, керамогранитной плиткой, синими стенами, полом из керамической плитки, душевой кабиной, врезной раковиной, столешницей из искусственного камня, бежевым полом, душем с распашными дверями и бежевой столешницей
Иван Кулаков

Квартира с историей
Татьяна Ильина (Сорокина)

Квартира с историей
Татьяна Ильина (Сорокина)

Реализованный дизайн-проект таунхауса в ЖК "На уровне"
На фото: большой совмещенный санузел в белых тонах с отделкой деревом в современном стиле с плоскими фасадами, фасадами цвета дерева среднего тона, душем в нише, инсталляцией, белой плиткой, керамической плиткой, зелеными стенами, полом из керамической плитки, душевой кабиной, врезной раковиной, столешницей из искусственного камня, белым полом, душем с распашными дверями, белой столешницей, тумбой под одну раковину, подвесной тумбой и панелями на части стены с
Кристина Новожилова

Реализованный дизайн-проект таунхауса в ЖК "На уровне"
На фото: большой совмещенный санузел в белых тонах с отделкой деревом в современном стиле с плоскими фасадами, фасадами цвета дерева среднего тона, душем в нише, инсталляцией, белой плиткой, керамической плиткой, зелеными стенами, полом из керамической плитки, душевой кабиной, врезной раковиной, столешницей из искусственного камня, белым полом, душем с распашными дверями, белой столешницей, тумбой под одну раковину, подвесной тумбой и панелями на части стены
Кристина Новожилова

Реализованный дизайн-проект таунхауса в ЖК "На уровне"
Пример оригинального дизайна: большой совмещенный санузел в белых тонах с отделкой деревом в современном стиле с плоскими фасадами, фасадами цвета дерева среднего тона, душем в нише, инсталляцией, белой плиткой, керамической плиткой, зелеными стенами, полом из керамической плитки, душевой кабиной, врезной раковиной, столешницей из искусственного камня, белым полом, душем с распашными дверями, белой столешницей, тумбой под одну раковину, подвесной тумбой и панелями на части стены
Кристина Новожилова




