"Гармония в серых тонах" двухкомнатная квартира с двумя санузлами площадью 97 кв

Год реализации: 2017
photo

13 фотографий

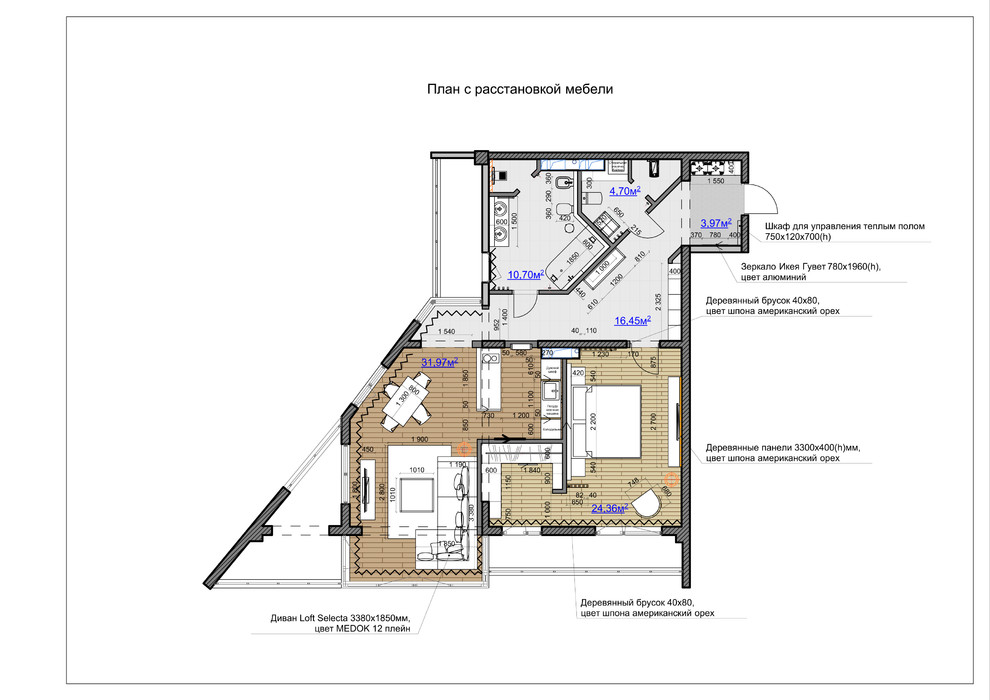
План
План
Коридор
Коридор
Коридор
Коридор
Санузел гостевой
Санузел гостевой
Санузел гостевой
Санузел гостевой
Санузел большой, вид на ванную
Санузел большой, вид на ванную
Санузел большой, вид на душевую
Санузел большой, вид на душевую
Спальня
Спальня
Спальня
Спальня
Спальня
Спальня
Кухня-гостиная
Кухня-гостиная
Кухня-гостиная
Кухня-гостиная
Кухня-гостиная
Кухня-гостиная
Фоновое изображение профиля Ольга Семиглазова
Фото профиля Ольга Семиглазова

Ольга Семиглазова

Дизайнеры интерьера

Контакты

г. Сочи