"Под звуки морского прибоя" квартира-студия для молодой семьи 33 кв м

Год реализации: 2018
photo

6 фотографий

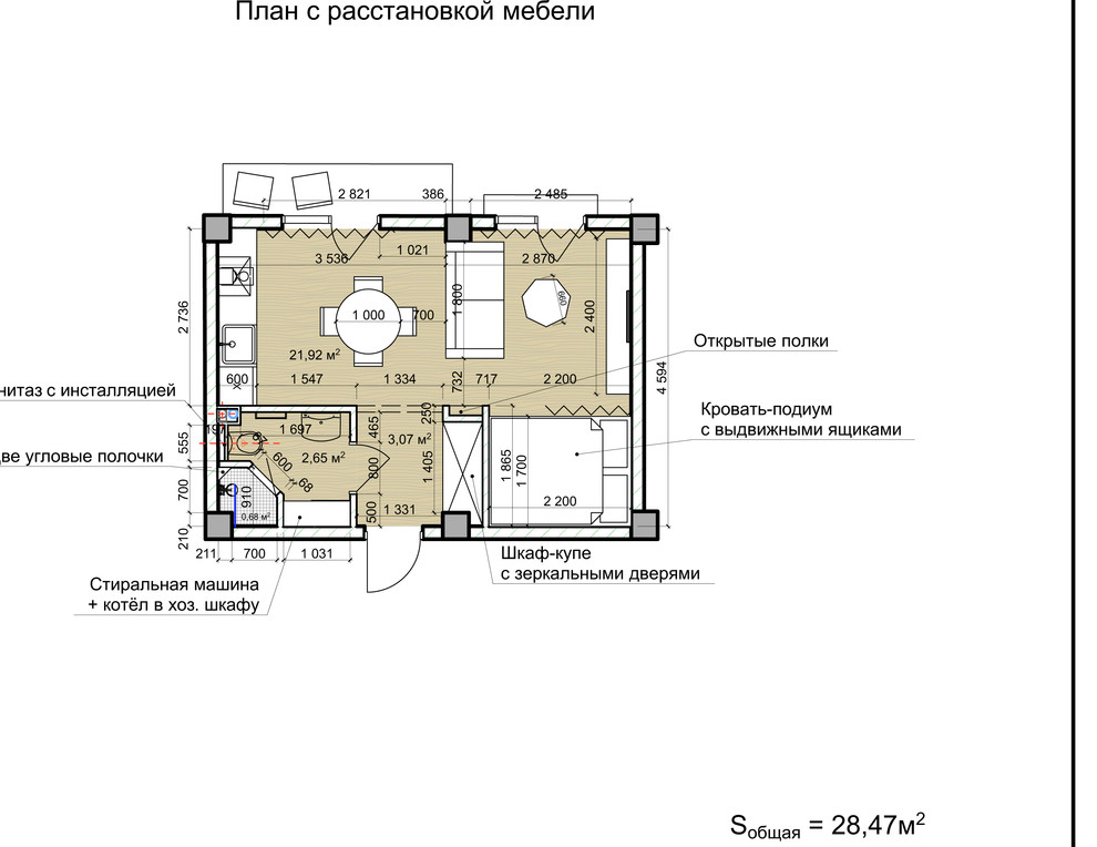
План
План
Санузел
Санузел
Санузел, вид на душевую
Санузел, вид на душевую
Кухня-гостиная
Кухня-гостиная
Зона гостиной
Зона гостиной
Фоновое изображение профиля Ольга Семиглазова
Фото профиля Ольга Семиглазова

Ольга Семиглазова

Дизайнеры интерьера

Контакты

г. Сочи